NEW
premium





SAION SAKURAZAKA ワンランク上の贅沢な日常を送るこだわりの空間
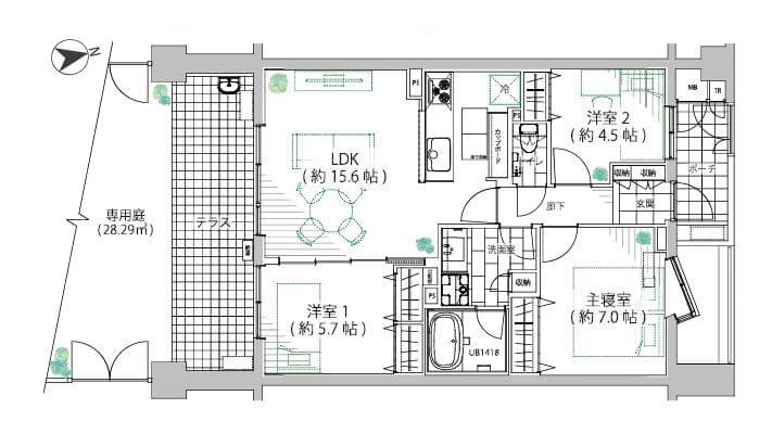
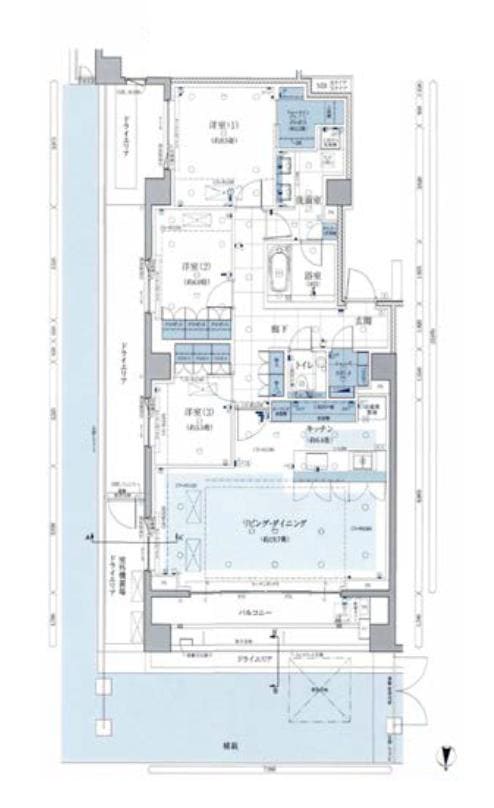
66,980万円(税込)
2LDK+WIC+SIC
/
107.48㎡
/
築20年以内
東京都港区赤坂
/
徒歩5分以内