勝どき 50階の開放感×癒しのビューバス
みどころ
ゆりかもめ「有明」駅より徒歩4分、りんかい線「国際展示場」駅より徒歩6分、複合施設「有明ガーデン」に隣接しているビッグコミュニティタワーマンションです。2019年(令和元年)竣工で、万が一の揺れにも安心な免震構造になっています。セキュリティ面や共用施設も充実しており、暮らしやすさに優れた住環境です。お部屋はカップルやDINKsにおすすめな2LDK。31階部分で2面バルコニー、窓に囲まれた開放的な空間です。都市の広がりを一望できる眺めが堪能できますよ。




リビングダイニングキッチンは、二面採光で窓に囲まれています。窓からは有明方面の開放的な眺望が広がり、遠くの空には東京スカイツリーを望むことができます。
フローリングはナチュラルな風合いで美しい木目柄。床暖房付きなので、足元からぽかぽか温まることができます。床暖房は、床から直接伝わる熱(伝導熱)と床から部屋全体に広がる熱(ふく射熱)の組み合わせで暖まります。埃が舞いにくく、空気が乾燥しにくいのも◎です。
生活感が出がちな小物や荷物が収納できるクローゼットが付いています。
ペットが飼育可(細則有)となっているので、現在一緒に住まわれている方や将来飼いたいと思っている方には特におすすめです。
窓からは北西側のバルコニーにアクセスができます。再開発がされている綺麗な街並みに水の潤いを感じる眺望が堪能できます。


キッチンは、リビングダイニングを見渡しながら料理ができる対面式です。家族や来客とのコミュニケーションが取りやすくて◎。しかし、コンロ側には壁がたっているので、油跳ねなどの心配はありません。
3口コンロ、グリル、ディスポーザー、食洗機付きと設備面も充実しています。シンクも広々としているので野菜などが洗いやすそうですよ。
キッチンの背面側にはカップボードが備え付けられています。調味料や食器などを収納できるだけでなく、電子レンジなどを置くこともできて使い勝手良好です。
カップボードの横には、ストック類などを収納できる便利なスペースが造られています。


洋室1はゆとりがあって主寝室に良さそうな空間です。壁面には鏡が設置されており、身だしなみが整えやすくなっています。また、奥行きがあるウォークインクローゼットが造られています。洋服や大きめの荷物もきちんと収納できて便利。
窓からは北東側のバルコニーにアクセスができます。31階部分ということもあり、目の前には開放的な眺望が広がり運河や東京スカイツリーも望めます。


三面鏡の中には化粧品などが収納できて使い勝手良好な洗面化粧台です。洗面ボウルとカウンターは継ぎ目がなくてお手入れも簡単。背面側にはリネン庫が造られているので、ごちゃごちゃしがちな洗面まわりもきちんと整頓できます。


ダークトーンの壁パネルがアクセントになっているバスルームです。お風呂にゆっくり浸かるのが好きという方に嬉しい追い焚き機能を搭載。家族の入浴時間がずれてしまっても安心です。また、浴室乾燥機には暖房・乾燥・換気・ミストサウナの機能がついており、一年中快適に過ごすことができます。


ウォシュレット一体型のトイレです。タンクレスタイプなのですっきりとした印象に。また、別途で手洗い器や鏡が造られているので、その場でサッと身だしなみを整えることができます。上部には吊戸棚が設置されていて、収納スペースもありますよ。カウンタースペースにはアロマなどを置いても◎。


玄関側に位置している洋室2は、書斎や子ども部屋など色々な使い方ができそうです。ウォークインクローゼットには、L字にパイプハンガーと棚板が設置されており、洋服も収納しやすくなっています。


白を基調とした清潔感のある玄関です。入って正面には高さのあるシューズボックスが備え付けられています。中には可動棚が設置されており、たくさんの靴を収納することができます。他にも玄関収納や廊下収納が造られていますよ。


2019年(令和元年)7月に竣工、地上33階建て、総戸数1539戸のビックコミュニティです。スタイリッシュな外観でホテルライクな共用エントランス。オートロック、モニター付きインターホン、防犯カメラも付いているのでセキュリティ面も安心です。その他、下記のサービス、施設もありサービスがとても充実しています。
パーティーラウンジ/ライブラリーラウンジ/キッズルーム&ペアレンツサロン/洗車スペース/ミーティングルーム/カーシェアリング/各階24時間ゴミ捨てクリーンステーション
ゆりかもめ「有明」駅から徒歩4分。その他にりんかい線「国際展示場」駅から徒歩6分で複数路線の利用が可能です。ショッピングモール「有明ガーデン」がすぐそばにあり、買い物や外食も気軽に楽しめます。また、お台場海浜公園や有明テニスの森など広い公園が多いのも魅力的です。
・ミニストップ シティタワーズ東京ベイ店(約300m)
・ローソン 有明コロシアム前店(約450m)
・イオンスタイル有明ガーデン(約100m)
・ビオラル 有明ガーデン店(約190m)
・オーケー 東雲店(約750m)
・文化堂 有明店(約900m)
・トモズ 有明ガーデン店(約260m)
・有明ガーデン(約35m)
・有明みんなクリニック有明ガーデン院(約450m)
・東雲クリニック(約1.2㎞)
・なないろハートクリニック(約1.3㎞)
・かしわぎクリニック(約1.9㎞)
・昭和大学江東豊洲病院(約2.3㎞)
・聖カタリナ病院(約2.7㎞)
・東京湾岸警察署 都橋交番(約1.0㎞)
・豊洲市場郵便局(約1.5㎞)
・東京臨海広域防災公園(約700m)
・有明テニスの森公園(約700m)
・有明オリンピック・パラリンピックパーク(約1.0㎞)
・東京ビッグサイト(約1.2㎞)
・武蔵野大学附属有明こども園(約210m)
・みらいく有明園(約600m)
・ひまわりキッズガーデン有明(約650m)
・区立有明小学校(約500m)
・区立有明中学校(約500m)
撮影日:2025年12月4日
※家具・調度品は販売価格に含まれておりません。
※図面と現況が異なる場合は現況を優先とします。
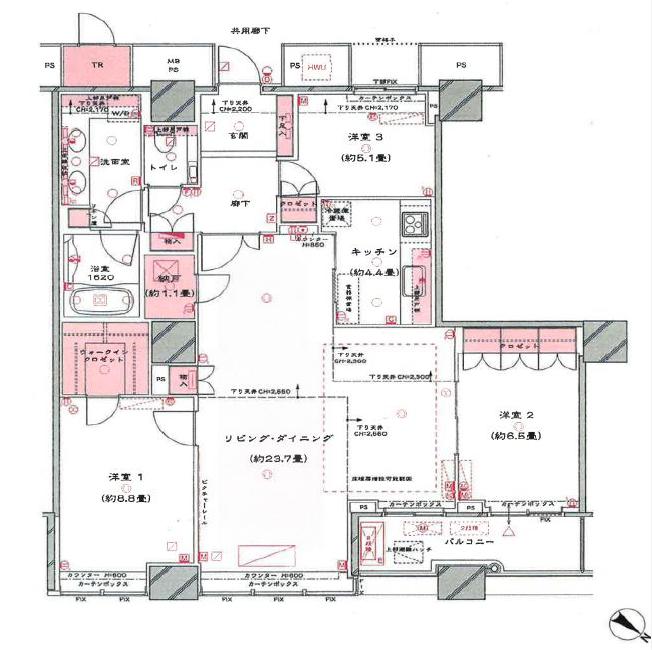
間取り図
設備・特徴
ローンシュミレーター
物件価格
24,800万円
頭金
金利(年)
返済年数
月々の支払金額
円
(支払総額 円)
このシミュレーションは、諸費用を含まない目安の数値となり、金額を保証するものではありません。
実際のお借り入れの可否や金利・返済額の諸条件については、金融機関にご確認ください
アクセスマップ
お客様の声
2025.06.13
mitaina user voice ~スムーズな住み替えに成功。高価格帯マンションの売り方・買い方、節税や投資物件のアドバイスまでトータルで任せられる存在~
中古マンション・不動産
2025.05.09
祐天寺・学芸大学・都立大学エリアのマンション売却相場と事例、高く売るために知っておくべき情報をご紹介
中古マンション・不動産
2025.05.07
高輪ゲートウェイ・泉岳寺エリアのマンション売却相場と事例、高く売るために知っておくべき情報をご紹介
中古マンション・不動産
2025.01.31
芝浦エリアのマンション売却相場と事例、高く売るために知っておくべき情報をご紹介