目黒 築10年未満、目黒川沿いのロケーションが魅力の邸宅
みどころ
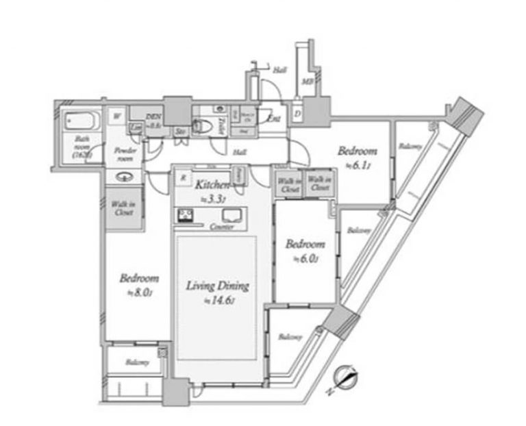
東急目黒線「武蔵小山」駅から徒歩2分。今回ご紹介する物件は最上階角部屋、約73㎡の3LDKです。リビングダイニングはL字の大きな窓があり、開放的な景色を眺めながら過ごせます。床暖房付きで冬場でも足元からじんわりと温まれます。また、各洋室にWIC(ウォークインクローゼット)が備わっていて、収納スペースも充実しています。


♦最上階角部屋につき眺望良好。開放感もたっぷりと感じられます。
♦リビングダイニングに床暖房付きで冬場も足元あたたか。
♦各洋室にWIC(ウォークインクローゼット)完備。
♦玄関にSIC(シューズインクローゼット)完備。
♦コンシェルジュサービス付き。
2021年(令和3年)4月に竣工の本マンション。地下2階付き41階建て、総戸数506戸のタワーレジデンスです。各住戸の専有面積は37㎡~111㎡台、間取りは1LDK~3LDKでシングルからファミリー層まで幅広い世帯に対応しています。1階には店舗が入っており、住人専用のエントランスが別途確保されています。セキュリティ面はオートロック、防犯カメラ、日勤の管理人体制で安心。宅配ボックスも設置されており、時間を気にせず荷物の受け取りができます。共用部も充実しており、日々の暮らしをより豊かにしてくれます。
集会室(ミーティングルーム)/キッズルーム/オーナーズスイート/スタディルーム/ライブラリー/パーティールーム/スカイラウンジ/コンシェルジュサービス/ゲストルーム/ラウンジ等
東急目黒線「武蔵小山」駅から徒歩2分。その他に東急池上線「戸越銀座」駅から徒歩16分で複数路線の利用が可能です。長約800mを誇る全天候型アーケード「武蔵小山商店街パルム」が至近にあり、約250店舗が軒を連ね、日々の買い物や外食には困りません。また、マンション低層階にもスーパーやクリニック、公益施設が入居しており、足元だけで生活が完結する利便性を備えています。徒歩圏内に広大な「都立林試の森公園」もあり、四季折々の自然や森林浴を楽しめます。
・東急ストア 武蔵小山駅ビル店(約190m)
・ピカール 武蔵小山(約250m)
・ライフ武蔵小山店(約190m)
・オオゼキ武蔵小山店(約280m)
・セブンイレブン 品川小山台店(約68m)
・スギ薬局 武蔵小山店(約160m)
・小山中央診療所(約180m)
・舘医院(約450m)
・黒須医院(約500m)
・和光医院(約450m)
・中澤医院(約450m)
・林試の森公園(約400m)
・かむろ坂公園(約700m)
・品川小山三郵便局(約120m)
・荏原警察署 武蔵小山交番(約350m)
・品川区立五反田図書館(約1.2㎞)
・目黒不動尊(約800m)
・武蔵小山商店街パルム(約400m)
・こどもヶ丘保育園小山園(約140m)
・ニチイキッズむさしこやま保育園(約240m)
・アライアンス幼稚園(約500m)
・品川区立 平塚幼稚園(約900m)
・品川区立小山小学校(約800m)
・品川区立荏原第六中学校(約860m)
※家具・調度品は販売価格に含まれておりません。
※図面と現況が異なる場合は現況を優先とします。
間取り図
設備・特徴
ローンシュミレーター
物件価格
33,000万円
頭金
金利(年)
返済年数
月々の支払金額
円
(支払総額 円)
このシミュレーションは、諸費用を含まない目安の数値となり、金額を保証するものではありません。
実際のお借り入れの可否や金利・返済額の諸条件については、金融機関にご確認ください
アクセスマップ
目黒 築10年未満、目黒川沿いのロケーションが魅力の邸宅
プラウドタワー渋谷 カルチャーと利便が交差する”渋谷”にそびえ立つ2025年築のタワーレジデンス
グランドメゾン代官山 THE PARK 四季を感じながら暮らす、210㎡超えの邸宅
お客様の声
2025.06.13
mitaina user voice ~スムーズな住み替えに成功。高価格帯マンションの売り方・買い方、節税や投資物件のアドバイスまでトータルで任せられる存在~
中古マンション・不動産
2025.05.09
祐天寺・学芸大学・都立大学エリアのマンション売却相場と事例、高く売るために知っておくべき情報をご紹介
中古マンション・不動産
2025.05.07
高輪ゲートウェイ・泉岳寺エリアのマンション売却相場と事例、高く売るために知っておくべき情報をご紹介
中古マンション・不動産
2025.01.31
芝浦エリアのマンション売却相場と事例、高く売るために知っておくべき情報をご紹介