代々木 事務所利用可能!三方角のペントハウス
みどころ
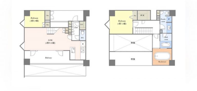
JR山手線「品川」駅から徒歩15分。今回ご紹介する物件は約86㎡の2LDKです。40階・41階部のメゾネット住戸で、リビングに吹き抜けのある開放感たっぷりの空間が印象的。大きな窓で自然な光を取り込みます。また、ルーフバルコニーにはスカイジャグジーが設けられて、ホテルのような贅沢な入浴タイムが楽しめます。東京タワーも望めます。


キッチンスペースを含め、約19.8帖のLDK。家族でゆったり過ごせる広さです。40階・41階部のメゾネット住戸で、リビングには吹き抜け部分があり、窓が大きく開放感たっぷり。室内からの眺望も良好です。
床暖房が設置されており、冬場でも足元からじんわりと温まれます。床に直接座ったり、寝転んでもあたたかく過ごせます。


リビングダイニングに面したバルコニー。約26㎡のゆとりある広さで、テーブルセットや観賞植物などを置いて、テラス感覚で過ごせます。バルコニー手すりが透明で開放的もUP。高層階につき眺望も良好です。


洗面室などの水回りは階段を上がった41階部にあります。洗面化粧台は洗面まわりの小物がすっきり整頓できるミラーボックス付きで、いつでもすっきりとした状態が保てそうです。洗面室奥にはトイレも設置されています。空間がすっきり見えるタンクレストイレで、ウォシュレット、収納スペースも付いています。また、トイレは40階部の廊下にも設けられています。
大きな窓で開放感のあるバスルーム。窓はスカイジャグジーに面していて、自然な光が入ります。浴室換気乾燥機とランドリーパイプ付きで雨の日や冬場の洗濯にも困りません。


ルーフバルコニーにはスカイジャグジーが設けられていて、ホテルライクのような贅沢な入浴時間が味わえます。夜景も望むことができますよ。


2006年(平成18年)3月竣工、3棟からなる総戸数2090戸の大規模タワーマンション。今回のお部屋が入る棟の総戸数は459戸です。鉄筋コンクリート造、地下2階付地上42階建。住友不動産旧分譲で、制震構造を採用しています。24時間有人管理、ダブルオートロックといった充実したセキュリティ体制が魅力的。エレベーター利用時もキーが必要です。コンシェルジュサービスに加え、プールやトレーニングジムなどの共用施設も整っていて、日々の豊かな暮らしをサポートしてくれます。無償で使用できるプライベートトランクがあるのも嬉しいですね。細則はありますが、ペット飼育可能です。
アクアサイトプール(温水ジャグジー併設)/キッズプール/キッズルーム/シアターカラオケルーム/トレーニングジム/パーティルーム/スカイライブラリー/バーベキュースペース/リラクゼーション/コモンホール/ゲストルーム/スタディルーム/スカイガーデン/スカイラウンジ/スーパーマルエツ(24時間営業)等
JR山手線「品川」駅より徒歩15分、東京モノレール「天王洲アイル」駅より徒歩8分の場所に立地しています。「品川」駅までは居住者専用のシャトルバスを利用することもできますよ(※有料)。主要駅にアクセスしやすく、新幹線の利用も便利。出張が多い方や旅行好きの方におすすめの立地です。さらに、「港南緑水公園」に隣接していて自然を身近に感じられる住環境も魅力的です。敷地内にはクリニックや歯科、24時間営業のスーパーがあり、日々の生活に重宝しそうです。
・マルエツ 港南ワールドシティ店(約70m)
・ファミリーマート 港南四丁目店(約190m)
・ローソン 港南三丁目店(約600m)
・薬 マツモトキヨシ 天王洲アイル店(約650m)
・マルエツ プチ 港南シティタワー店(約700m)
・まいばすけっと 天王洲アイル店(約800m)
・クイーンズ伊勢丹 品川店(約1.3km)
・ワールドシティ益子クリニック(約30m)
・東京シーフォートスクエアクリニック(約650m)
・若田クリニックシティタワー品川(約700m)
・天王洲内科医院(約750m)
・第三北品川病院(約2.1km)
・JCHO 東京高輪病院(約2.2km)
・品川警察署 天王洲交番(約700m)
・品川天王洲郵便局(約700m)
・区立港南図書館(約650m)
・港南緑水公園(約90m)
・港南和楽公園(約700m)
・区立芝浦中央公園(約1.3km)
・ベネッセ 港南保育園(約70m)
・ゆらりん港南緑水保育園(約80m)
・区立たかはま保育園(約500m)
・区立港南幼稚園(約500m)
・区立港南小学校(約350m)
・区立港南中学校(約290m)
・東京海洋大学(約550m)
※家具・調度品は販売価格に含まれておりません。
※図面と現況が異なる場合は現況を優先とします。
間取り図
設備・特徴
ローンシュミレーター
物件価格
28,500万円
頭金
金利(年)
返済年数
月々の支払金額
円
(支払総額 円)
このシミュレーションは、諸費用を含まない目安の数値となり、金額を保証するものではありません。
実際のお借り入れの可否や金利・返済額の諸条件については、金融機関にご確認ください
アクセスマップ
パークタワー品川ベイワード 収納充実!夜景も楽しめる約90㎡の3LDK
田町 東京タワーを望む、洗練のタワーレジデンス
GLOBAL FRONT TOWER 東京タワー&レインボーブリッジを望む、開放感溢れる角住戸
お客様の声
2025.06.13
mitaina user voice ~スムーズな住み替えに成功。高価格帯マンションの売り方・買い方、節税や投資物件のアドバイスまでトータルで任せられる存在~
中古マンション・不動産
2025.05.09
祐天寺・学芸大学・都立大学エリアのマンション売却相場と事例、高く売るために知っておくべき情報をご紹介
中古マンション・不動産
2025.05.07
高輪ゲートウェイ・泉岳寺エリアのマンション売却相場と事例、高く売るために知っておくべき情報をご紹介
中古マンション・不動産
2025.01.31
芝浦エリアのマンション売却相場と事例、高く売るために知っておくべき情報をご紹介