赤坂 最上階角部屋!144㎡の広々空間に40㎡のルーフバルコニーが付いた3LDK
みどころ
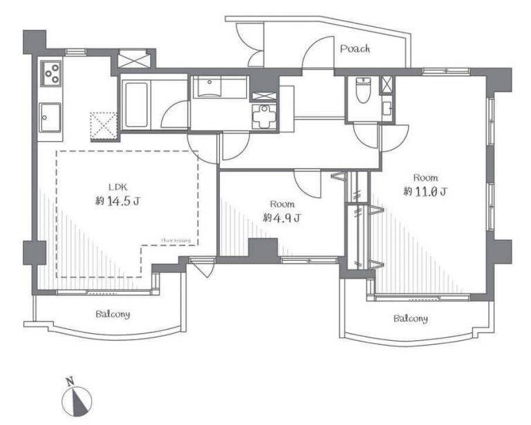
東京メトロ千代田線「赤坂」駅から徒歩9分。今回ご紹介する物件は約67㎡の2LDKです。リビングダイニングは南向きで陽当り良好。自然な光が差し込む心地よい空間です。洋室(約11.0帖)は二面採光で眺望も良好。見晴らしの良い景色が望めます。リビングには床暖房が設置されており、冬場でも足元からじんわりと温まれます。


キッチンスペースを含め、約14.5帖のLDK。南向きで自然な光が差し込む明るい空間。キッチンスペースが空間分けされていて、生活感を感じさせないすっきりとした印象も感じられます。天井には間接照明が施されていて演出性もUP。
床暖房が設置されており、冬場でも足元からじんわりと温まれます。床に直接座ったり、寝転んでもひんやり感なく暖かく過ごせます。


リビングと空間分けされたキッチンスペース。キッチンまわりの生活感をさりげなく目隠しできます。料理が捗る3口ガスコンロ、家事の時短に心強い食洗機付き。小窓付きで換気もよりスムーズに行えます。


バルコニーはリビングダイニングと洋室(約11.0帖)のそれぞれに付いています。どちらも南向きで陽当り良好です。


約11.0帖の洋室。二面採光で開放感のある空間です。東側の窓からも見晴らしの良い景色が望めます。クローゼットも設けられていますよ。


約4.9帖の洋室。洋室は全て廊下に面した独立性の高いお部屋で、自分時間をゆっくりと過ごせます。窓、クローゼット付きで使い勝手の良い洋室です。


洗面化粧台は洗面まわりの小物がすっきり整頓できるミラーボックスや、モノの出し入れがしやすい引き出し式のキャビネット付きで使い勝手の良さもポイント。洗濯機置き場の上部にも収納スペースが備わっています。
ストーン調で落ち着きのある雰囲気のバスルーム。1317サイズです。追い炊き機能の他、乾燥・換気・暖房・涼風の4つの機能が備わっていて、一年中快適にバスタイムが楽しめます。ランドリーパイプ付きで雨の日や冬場の洗濯にも困りません。
廊下に面したレストルーム。空間がすっきり見えるタンクレストイレ。手洗いカウンター、収納スペース、ウォシュレットも備わっています。


玄関にはシューズボックスを完備。カウンター付きでアートや季節の花を飾って空間に彩りをプラスできます。


1997年(平成9年)7月竣工のマンション。地下1階付地上3階建て、総戸数35戸の小規模マンションです。各戸の専有面積は約25㎡~67㎡、間取りは1DK~2LDKとシングルやDINKS向けにプランニングされています。セキュリティ面はオートロック、日勤の管理人体制、24時間セキュリティシステム導入で安心安全。不在時の荷物の受け取りに便利な宅配ボックスも完備されています。また、エントランス内のラウンジにはソファが置かれ、品格ある雰囲気が漂っていますよ。規約がありますが、ペットとの暮らしも可能です。
最寄り駅は東京メトロ千代田線「赤坂」駅から徒歩9分。その他にも東京メトロ千代田線「乃木坂」駅から徒歩9分、東京メトロ銀座線・半蔵門線・都営大江戸線「青山一丁目」駅から徒歩10分となっています。マンション近隣は大使館やマンションが建ち並び、隣接している道路は車の交通量も比較的少ないため閑静な住宅街です。徒歩圏内に赤坂サカスや東京ミッドタウンなどの大型商業施設があり、日常的な買い物だけでなくお買い物や外食も楽しめます。都心でありながら赤坂御用地・高橋是清公園もあるので、自然も楽しむことができます。
・ファミリーマート 赤坂稲荷坂店(約210m)
・セブンーイレブン 赤坂ガーデンシティ店(約280m)
・ナチュラルローソン 赤坂通店(約450m)
・ローソン 赤坂九丁目店(約600m)
・まいばすけっと 青山一丁目店(約750m)
・マルエツプチ 赤坂Bizタワー(約750m)
・吉池 赤坂店(約1.0㎞)
・肉のハナマサ 赤坂店(約1.1㎞)
・スギ薬局 赤坂店(約550m)
・清水クリニック(約400m)
・山王病院(約600m)
・山王メディカルセンター(約700m)
・赤坂見附前田病院(約1.0㎞)
・虎の門病院(約2.0㎞)
・赤坂警察署 赤坂五丁目交番(約550m)
・赤坂郵便局(約750m)
・高橋是清翁記念公園(約350m)
・一ツ木公園(約400m)
・檜町公園(約650m)
・氷川公園(約1.0㎞)
・赤坂Bizタワー(約550m)
・赤坂サカス(約600m)
・東京ミッドタウン(約800m)
・区立中之町幼稚園(約650m)
・南青山保育園(約650m)
・赤坂ちとせ保育園(約650m)
・区立赤坂学園(約500m)
※家具・調度品は販売価格に含まれておりません。
※図面と現況が異なる場合は現況を優先とします。
間取り図
設備・特徴
ローンシュミレーター
物件価格
16,990万円
頭金
金利(年)
返済年数
月々の支払金額
円
(支払総額 円)
このシミュレーションは、諸費用を含まない目安の数値となり、金額を保証するものではありません。
実際のお借り入れの可否や金利・返済額の諸条件については、金融機関にご確認ください
アクセスマップ
赤坂 最上階角部屋!144㎡の広々空間に40㎡のルーフバルコニーが付いた3LDK
シティタワー麻布十番 21階部の高層階、都会的な景色が楽しめる1LDK
外苑前 54㎡のルーフバルコニー付き!最上階の3LDK