 
																
																	 
															 
								 
													初台 ミッドセンチュリーに住まう、110㎡超の開放感溢れる住まい
ノア南麻布 緑を借景とした穏やかなLDKは「成約済み」です。
みどころ
1979年(昭和54年)4月に竣工した「ノア南麻布」。レンガ風のタイル貼りで重厚感ある外観が特徴的です。鉄筋コンクリート造地上5階建、総戸数は33戸。エントランスは2階部分にあります。共用部は綺麗に清掃されていて、管理体制の良さがうかがえます。オートロックではありませんが、防犯カメラ完備、巡回の管理人体制で防犯面に配慮されています。各住戸の広さは約28㎡~66㎡で、幅広い世帯に対応しています。こちらのマンションは、東京メトロ日比谷線「広尾」駅より徒歩10分ほどの場所に立地しています。他にも東京メトロ南北線・都営三田線「白金高輪」駅より徒歩12分、東京メトロ南北線・都営大江戸線「麻布十番」駅より徒歩14分の距離で、3駅4路線利用可能です。マンション近隣には小学校があり、徒歩5分圏内にはスーパー、コンビニが揃っています。
表参道、南青山、恵比寿、代官山、六本木に隣接し、都内でも有数のハイセンスな街として人気を集める広尾。今回ご紹介物件は「広尾」駅から徒歩10分、ゆるやかな坂道を上り、一方通行の奥まった場所に位置しています。お部屋の間取りは約63㎡の2LDK、南東向きの角部屋で明るい住まいです。窓の外は敷地内の緑豊かな植栽になっていて、1階部でありながら心地よい眺めになっています。取材時はあいにくの雨でしたが、より緑が濃く映り、凛とした穏やかな空気感でした。




キッチンスペースを含め、約13.2帖のLDK。二面採光で自然光が入る明るい空間です。敷地内の植栽で緑を感じられる心地よい景色になっています。1階部ですが、垣根が付いているので人目もあまり気になりません。




キッチンスペースを最小限に抑えることのできる壁付けキッチン。その分リビングダイニングを広々と使うことができます。また、3口ガスコンロ、食洗機、浄水器付き水栓と設備も充実。収納に便利なカップボードも備わっています。カップボードの家電置場には蒸気吸い込み口が付いているので、炊飯器など移動せずにその場で使うことができます。




約6.6帖の洋室。朝の光が心地よい東向きです。バルコニーへも出入りが可能なので、開放感も得られます。また、洋服好きに嬉しいWIC付き。奥行きがあり洋服がたっぷりと収納できます。クローゼット内にはコンセントも備わっているので、お掃除ロボットやWi-Fi機器などを収納する場所にも便利です。


約5.1帖の洋室。窓は共用廊下に面していますが、すりガラス+格子付きになっているので安心安全です。また、収納スペースが充実していて、クローゼット2つ+収納棚が設けられています。棚には本を並べたり、アートやグリーンを飾ってディスプレイを楽しむのもいいですね。


トイレ、ユニットバス、洗面化粧台の水回りがひとまとめにされた洗面室。可動棚は洗剤やタオル置き場として使えるので便利です。また、洗面まわりの小物が整頓できるミラーボックス、物の出し入れがしやすい引き出し式のキャビネット付きの洗面化粧台で使い勝手は良好。水栓のヘッドが引き出せるタイプなので、ボウルの隅々まで洗い流せます。


ボタン一つで照明の色の切り替えができるバスルーム。朝のシャワーなどすっきりしたい時には白っぽい光、浴槽にゆっくりと浸かりたい時はオレンジっぽい光など、シーンや気分に合わせて使い分けができます。また、乾燥・換気・暖房・涼風の4つの機能が備わっていて一年中快適にバスタイムをお楽しみいただけます。ランドリーパイプ付きなので雨の日や冬場の洗濯にも困りません。


洗面室内に面しているレストルーム。ウォシュレット、手洗いタンク付きのトイレを採用しています。収納スペースも設けられているので、トイレットペーパーや小物類もすっきり整頓できます。




玄関には姿見付きのシューズボックスを完備。靴を履いた状態で身だしなみのチェックができます。また、ボックス内は可動棚になっているので、ブーツなど高さのある靴もすっきりと収まります。廊下にも物入が2つ備わっていて、豊富な収納スペースが確保されています。洗濯機置場も廊下に備設けられていますよ。


レンガ風のタイル貼の外壁で重厚感のある本マンション。1979年(昭和54年)4月に竣工、総戸数33戸の小規模マンションで、エントランスは5階建の2階部に位置します。築年数は40年以上経っていますが、共用部は清潔感があり、手入れが行き届いている様子がうかがえました。各住戸の広さは約28㎡~66㎡で、シングルからファミリー層まで様々な世帯に対応しています。オートロック式ではありませんが、防犯カメラ、巡回の管理人体制で安心感が得られます。また、飼育細則はありますが、ペットと一緒に暮らすことができます。
表参道、南青山、恵比寿、代官山、六本木に隣接し、都内でも有数のハイセンスな街として人気を集める広尾。数多くの大使館が点在し、輸入品を多く扱うスーパーマーケットも多数あり、海外の人も住みやすいエリアになっています。街を歩けば永く愛されている老舗のお店や、新しく誕生したお店が軒を連ね、カフェでのんびりと時間を過ごしたり、テイクアウトで食卓に色を添えたり、日々の日常をより華やかにしてくれます。また、様々な教育施設や文化施設が集まっており、青山学院大学、東京女学館小学校・中学校・高等学校、聖心女子大学、慶應義塾幼稚舎、広尾学園中・高等学校、國學院大學、根津美術館、有栖川宮記念公園が徒歩圏内。充実した教育・医療施設もこの街の人気のひとつです。
本マンションの最寄り駅は東京メトロ日比谷線「広尾」駅から徒歩10分。ゆるやかな坂道を上り、一方通行の奥まった場所に位置しています。その他にも東京メトロ南北線・都営三田線「白金高輪」駅から徒歩12分、東京メトロ南北線・都営大江戸線「麻布十番」駅から徒歩14分で、全部で3駅4路線の利用が可能です。マンション近隣には港区立本村小学校があり、閑静な住宅街でありながら、比較的治安が良い雰囲気です。また、徒歩5分圏内にスーパー、コンビニもあり日常的な買い物にも困りません。
・肉のハナマサ 南麻布店(約400m)
・まいばすけっと南麻布古川橋(約650m)
・National Azabu Supermarket(約800m)
・ファミリーマート 南麻布三丁目店(約300m)
・ファミリーマート 麻布運動場前店(約550m)
・南麻布医院(約550m)
・古川橋病院(約600m)
・東京都立広尾病院(約1.2km)
・日本赤十字社医療センター(約1.7km)
・本村公園(約260m)
・有栖川宮記念公園(約700m)
・港白金三郵便局(約450m)
・麻布警察署 古川橋地域安全センター(約550m)
・東京都立中央図書館(約600m)
・駐日フィンランド大使館(約300m)
・駐日イランイスラム共和国大使館(約290m)
・アルジェリア大使館(約350m)
・本村保育園(約500m)
・南麻布三丁目保育室(約400m)
・港区立本村小学校(約130m)
・港区立高陵中学校(約1.5km)※選択希望制
・麻布中学校 麻布高等学校(約800m)
・東京女学館中学校・高等学校(約1.9km)
表参道、南青山、恵比寿、代官山、六本木に隣接し、都内でも有数のハイセンスな街として人気を集める広尾。今回ご紹介物件は「広尾」駅から徒歩10分、ゆるやかな坂道を上り、一方通行の奥まった場所に位置しています。お部屋の間取りは約63㎡の2LDK。南東向きの角部屋で明るい住まいです。窓の外は敷地内の緑豊かな植栽になっていて、1階部でありながら心地よい眺めになっています。また、各洋室や廊下には充実した収納スペースが確保されおり、いつでも綺麗な状態をキープできます。少しでも興味がある方は是非お気軽に内見にいらしてくださいね。
※取材日:2021年7月1日
※家具・調度品は販売価格に含まれておりません。
※図面と現況が異なる場合は現況を優先とします。
※更新日:2021年11月10日
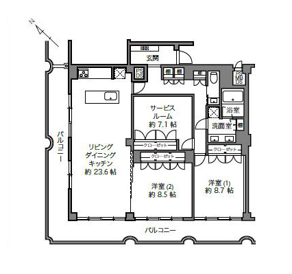
間取り図
 
			 
		設備・特徴
アクセスマップ
 
															お客様の声
2025.06.13
mitaina user voice ~スムーズな住み替えに成功。高価格帯マンションの売り方・買い方、節税や投資物件のアドバイスまでトータルで任せられる存在~
 
															中古マンション・不動産
2025.05.09
祐天寺・学芸大学・都立大学エリアのマンション売却相場と事例、高く売るために知っておくべき情報をご紹介
 
															中古マンション・不動産
2025.05.07
高輪ゲートウェイ・泉岳寺エリアのマンション売却相場と事例、高く売るために知っておくべき情報をご紹介
 
															中古マンション・不動産
2025.01.31
芝浦エリアのマンション売却相場と事例、高く売るために知っておくべき情報をご紹介
