プリズムタワー 富士山も望める25階部分の三方角部屋
ニューライフ一番町 千代田区一番町アドレス、繋がりを感じる住まいは「成約済み」です。
みどころ
東京メトロ半蔵門線「半蔵門」駅より徒歩3分の好立地物件。1982年竣工の10階建マンションです。周辺には「駐日英国大使館」や「千鳥ヶ淵公園」があり、都心ながら落ち着いた住環境が魅力的です。お部屋は3階部分、専有面積77㎡の南東向き2LDK。洋室の間仕切りにガラスを採用していたり、室内窓が設置されていたりと、家族の繋がりを感じる住まいです。




約22.6帖の広々としたLDK。ナチュラルな風合いの木目フローリングに、石目柄の壁がアクセントになったお洒落な内装です。南東向きのバルコニーに面していて、奥行きのある間取り。家族はもちろん、ゲストを招いてもゆったり過ごせますね。コーナー部分には可動棚があり、見せる収納を楽しめます。
リビングダイニングには床暖房を新規設置済み。寒い時期も足元からじんわりと温まることができます。埃を舞い上げにくく、空気が乾燥しにくいのも嬉しいですね。




ブラック基調で存在感のあるキッチン。リビングダイニングを見渡せる開放的な対面タイプです。パートナーやゲストと会話をしながら楽しく料理ができそうですね。
キッチンカウンター下は、リビング側も収納スペースになっています。使用頻度の高いグラスやカトラリーを収納すれば、食事前にさっと出すことができて便利。収納スペースが充実していて、ごちゃごちゃしがちなキッチンまわりがすっきり片付きそうですね。


約7.8帖の洋室1。北東・南東2面採光で自然光がたっぷり入ります。窓からは木々の緑が見えて、リラックスタイムを過ごせそうですね。4枚折れ戸のクローゼット完備で収納力◎。主寝室にぴったりです。




お隣の洋室2は約6.9帖。LDK側の壁がガラスになっていて、繋がり感と奥行きを感じる空間です。収納にはオープンクローゼットを採用◎。扉がなく出し入れスムーズな上、通気性の良さも魅力的ですよ。ガラスの間仕切りとクローゼットにはロールスクリーンが設置されていて、シーンに合わせて昇降可能。ゲストが来た時にさっと目隠しできて嬉しいですね。


木目デザインで洗練された印象の洗面化粧台。カウンターには化粧品やドライヤーを確保できるスぺースが確保されていて、忙しい朝の身支度もスムーズに行えそうです。洗面まわりの小物はミラー裏にすっきり収納◎。取り出しやすいのも嬉しいですね。


シックなデザインに、木目フロアが温かみをプラスするバスルーム。浴槽にはお湯を照らすアクアフィールライトが搭載されていて、スパのようなリラックスタイムを過ごせます。肌をなでるお湯がやさしく身体をあたためてくれる「肩湯」に、心地よい刺激で腰まわりをほぐしてくれる「腰ほぐし湯」。テレビを見ながら1日の疲れをゆっくり癒せそうですね。


廊下に面していて独立性の高いレストルーム。スタイリッシュなタンクレストイレに交換済みです。手洗いカウンター付きなのですぐに手を洗うことができて衛生的。ゲストを洗面室まで案内する手間もかかりません。トイレットペーパーの収納に便利な吊戸棚も備え付けです。


石目調のアクセントウォールが施された玄関。入って右手には大容量のシューズボックスが設置されています。可動棚なので高さのある靴もすっきり収納できますよ。いつも清潔な玄関をキープできそうですね。


1982年(昭和57年)11月竣工、地下1階付10階建のマンションです。鉄骨鉄筋コンクリート造、総戸数は64戸。淡いベージュ系のタイル貼りで清潔感のある外観です。オートロックではありませんが、監視カメラ設置&日勤管理体制、エントランスが奥まっていて防犯効果が期待できます。敷地内には駐車場と駐輪場を完備しています。空き状況は変動するのでお問い合わせください。
東京メトロ半蔵門線「半蔵門」駅より徒歩3分の駅近立地。斜め前には「駐日英国大使館」があり、落ち着いた住環境が魅力的な千代田区一番町アドレスです。東京メトロ有楽町線「麹町」駅へも徒歩8分ほどで複数路線利用可能。「渋谷」や「表参道」、「有楽町」駅などへダイレクトアクセスでき、通勤やお出かけに便利です。都心でありながら「千鳥ヶ淵公園」や「皇居」などの自然にも恵まれて、古くからの文豪や著名人が好んで暮らした文化と歴史があるエリア。採光・通風性の高さが期待できる角地に立地しています。
・セブン-イレブン 千代田一番町店(約160m)
・マルエツ プチ 一番町店(約220m)
・スギ薬局 一番町店(約230m)
・ファミリーマート 一番町店(約270m)
・まいばすけっと 半蔵門駅前店(約400m)
・ココスナカムラ 麹町店(約700m)
・スーパーマーケット リコス 九段南4丁目店(約750m)
・リンコス 九段店(約850m)
・半蔵門のびすここどもクリニック(約50m)
・半蔵門病院(約300m)
・麹町内科(約500m)
・滝医院(約750m)
・東京逓信病院(約1.4km)
・国家公務員共済組合連合会 九段坂病院(約1.5km)
・赤坂見附前田病院(約1.8km)
・麴町警察署 五味坂交番(約180m)
・千代田一番町郵便局(約400m)
・区立四番町図書館(約500m)
・区立 千鳥ヶ淵公園(約190m)
・千鳥ヶ淵公園児童遊園(約600m)
・区立東郷元帥記念公園(約700m)
・北の丸公園(約850m)
・区立九段坂公園(約900m)
・区立清水谷公園(約1.1km)
・区立麹町保育園(約50m)
・AIAI NURSERY 三番町(約500m)
・区立九段幼稚園(約550m)
・区立麹町小学校(約600m)
・区立麹町中学校(約1.1km)
・区立九段中等教育学校(約1.2km)
・大妻女子大学(約270m)
・法政大学(約1.0km)
・日本大学(約1.0km)
おすすめ記事
【日本屈指の高級住宅街、市ヶ谷・麹町の住みやすさを徹底解説!】はこちら。
【市ヶ谷・麹町エリアのマンション:資産性の高い中古マンションをピックアップ】はこちら。
撮影日:2023年10月19日
※家具・調度品は販売価格に含まれておりません。
※図面と現況が異なる場合は現況を優先とします。
※更新日:2024年6月6日
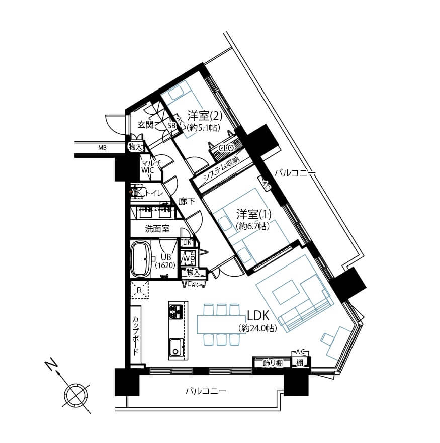
間取り図
設備・特徴
アクセスマップ
飯田橋 5路線が利用可能!ペットと暮らせる2LDK
東京レジデンス 大規模タワーマンションの25階、100㎡超の南西向き角住戸
東京パークタワー 室内外を繋ぐインナーテラス付、機能美あふれるホテルライクな暮らし
お客様の声
2025.06.13
mitaina user voice ~スムーズな住み替えに成功。高価格帯マンションの売り方・買い方、節税や投資物件のアドバイスまでトータルで任せられる存在~
中古マンション・不動産
2025.05.09
祐天寺・学芸大学・都立大学エリアのマンション売却相場と事例、高く売るために知っておくべき情報をご紹介
中古マンション・不動産
2025.05.07
高輪ゲートウェイ・泉岳寺エリアのマンション売却相場と事例、高く売るために知っておくべき情報をご紹介
中古マンション・不動産
2025.01.31
芝浦エリアのマンション売却相場と事例、高く売るために知っておくべき情報をご紹介