セントラルパークタワー ラ・トゥール新宿 都心で見つけた、緑と暮らす贅沢
藤和参宮橋コープ2 南東向きの繋がる住まいは「成約済み」です。
みどころ
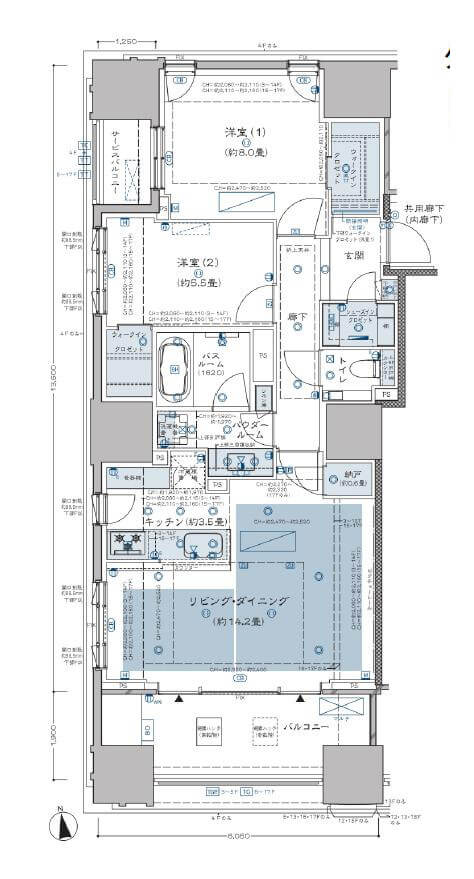
1983年10月竣工、小田急小田原線「参宮橋」駅より徒歩8分の場所に佇む4階建マンション。都心のオアシス「代々木公園」近くの落ち着いた住宅街に立地しています。今回ご紹介するのは3階部分、専有面積61㎡の2LDKです。太陽光が降り注ぐ南東向きのリビングは、お部屋の中央に位置しています。2部屋ある寝室に接続しているので、自然と家族が集まる場所になりそう。食洗機や浴室乾燥機など、水まわりの設備が充実しているのも嬉しいポイントです。


南東向きの大きな窓からあたたかい光が降り注ぐリビングダイニング。キッチンと合わせて約13.5帖の空間です。自然な風合いの木目柄フローリングを採用していて、木の温もりを感じる空間。壁や建具は白を基調としていて、さまざまなテイストの家具と相性が良さそうです。
リビングダイニングはお部屋の中央に位置していて、2部屋ある寝室の両方に接続しています。アクセスが良く、自然と家族が集まる場所になりそうです。


調理に集中できる壁付けキッチン。背面にはカウンターがあり、生活感が出る部分をさりげなく目隠しできるのもポイントです。耐久性・耐熱性に優れたガラストップコンロや浄水器など、設備が充実しています。後片付けの時短を叶える食洗機も内蔵されていて、快適なキッチン時間になりそうですよ。


約6.5帖の寝室1。LDKと廊下に接続していて、スムーズな動線が魅力的です。扉はどちらも引き戸なので、開閉時にスペースを取らないのも嬉しいですね。4枚折れ戸のクローゼット完備で収納力◎。使い勝手の良い空間です。


リビングダイニングに接続するバルコニー。3.67㎡です。南東向きにつき陽当たり良好◎。あたたかい太陽光が降り注ぎます。晴れの日には洗濯物がよく乾きそうですね。室外機が天吊りで設置されていて邪魔にならず、洗濯物を干すのに充分なスペースがあります。


リビングダイニングの奥にある寝室2。約6.1帖です。南東・北東の2面に窓があり、明るい光が差し込む空間。風通しの良さも魅力的です。自然光を感じ爽やかな朝を迎えられそうですね。


白基調で清潔感のある洗面室。脱衣スペースを兼ねたゆとりある空間です。洗面化粧台には三面鏡とミドルミラーが設置されていて、身だしなみを整えるのに便利ですね。
艶のある木目柄パネルが落ち着く空間を演出するバスルーム。半身浴に便利な追い焚き機能を搭載しています。浴室乾燥機も付いているので、天候に関係なく洗濯物を乾かすことができて助かります。
廊下に面していて独立性の高いレストルーム。温水洗浄便座付トイレに交換済みです。上部には吊戸棚があり、トイレットペーパーや掃除用品など、生活感のある荷物をすっきり収納できます。


フットライトの柔らかな明かりが幻想的な雰囲気を醸し出す玄関。可動棚仕様のシューズボックスが設置されていて、収納スペースが充実しています。ロングブーツやレインシューズなども収納でき、いつも清潔な玄関をキープできそうですね。


1983年(昭和58年)10月に竣工した地上4階建のマンション。鉄筋コンクリート造、総戸数は47戸です。エントランスには階段がありますが、スロープも付いていてベビーカーやトランクケースの移動に便利です。オートロック完備でセキュリティ面は安心。共用部は綺麗に清掃されていて、管理体制の良さがうかがえます。ペット飼育についてはご相談ください。
小田急小田原線「参宮橋」駅より徒歩8分。都心のオアシス「代々木公園」近くの落ち着いた住宅街に立地しています。小田急小田原線「代々木八幡」駅・東京メトロ千代田線「代々木公園」駅も徒歩圏内で、3駅2路線利用可能。ビッグターミナルである「新宿」駅までは直通3分ほどでアクセスできます。駅前にはコンビニ・スーパー・ドラッグストアといった買い物施設に加え、幅広いジャンルの飲食店が並んでいます。仕事帰りに立ち寄ることができて便利ですね。
・マルマンストア参宮橋店(約400m)
・セブン-イレブン 代々木参宮橋店(約450m)
・ココカラファイン 参宮橋店(約500m)
・まいばすけっと 参宮橋駅前店(約550m)
・オーケー 初台店(約700m)
・ファミリーマート 参宮橋駅前店(約700m)
・ローソン 代々木八幡駅北店(約700m)
・初台スーパー百貨店(約750m)
・スーパーマーケットリコス 代々木1丁目店(約1.2km)
・内藤病院(約950m)
・東海大学医学部付属東京病院(約1.4km)
・望星西新宿診療所(約1.5km)
・三好医院(約1.5km)
・東京総合病院(約1.7km)
・新宿外科クリニック(約1.7km)
・代々木警察署 初台二丁目交番(約550m)
・代々木五郵便局(約400m)
・代々木公園(約450m)
・区立参宮橋公園(約600m)
・代々木第四公園(約650m)
・新国立劇場(約1.1km)
・聖ヨゼフ保育園(約260m)
・代々木至誠こども園(約450m)
・参宮橋ちとせ保育園(約450m)
・区立代々木山谷小学校(約900m)
・区立代々木中学校(約1.2km)
※家具・調度品は販売価格に含まれておりません。
※図面と現況が異なる場合は現況を優先とします。
※更新日:2024年2月22日
間取り図
設備・特徴
アクセスマップ
セントラルパークタワー ラ・トゥール新宿 都心で見つけた、緑と暮らす贅沢
表参道ヒルズ zelkova terrace west(ゼルコバテラスウエスト) 施設上層部に位置するゆとりある1LDK
プラウド神宮前 新築未入居、緑に癒されるバルコニー
お客様の声
2025.06.13
mitaina user voice ~スムーズな住み替えに成功。高価格帯マンションの売り方・買い方、節税や投資物件のアドバイスまでトータルで任せられる存在~
中古マンション・不動産
2025.05.09
祐天寺・学芸大学・都立大学エリアのマンション売却相場と事例、高く売るために知っておくべき情報をご紹介
中古マンション・不動産
2025.05.07
高輪ゲートウェイ・泉岳寺エリアのマンション売却相場と事例、高く売るために知っておくべき情報をご紹介
中古マンション・不動産
2025.01.31
芝浦エリアのマンション売却相場と事例、高く売るために知っておくべき情報をご紹介