ディアナガーデン西麻布 1フロア1住戸のペントハウス!東京タワーを望むルーフバルコニー付きのメゾネット住戸
みどころ
東急田園都市線「池尻大橋」駅より徒歩2分、駅近にそびえ立つ「プリズムタワー」です。コンシェルジュサービス・24時間有人管理で、快適な暮らしをサポート。細則はありますが、ペットとも一緒に住むことができますよ。お部屋は25階部分の2LDK。三方角部屋で窓に囲まれた開放感溢れる空間となっています。天気が良いと富士山も望めます。上品で柔らかい印象の内装も魅力の一つです。




約24.0帖の広々としたリビングダイニングキッチンです。三方角部屋のため窓に囲まれており、開放感溢れる眺望を堪能できます。さらに、南西向きのため日当たりも良好です。
フローリングはナチュラルな風合いで美しい木目柄。床暖房付きなので、足元からぽかぽか温まることができます。床暖房は、床から直接伝わる熱(伝導熱)と床から部屋全体に広がる熱(ふく射熱)の組み合わせで暖まります。埃が舞いにくく、空気が乾燥しにくいのも◎です。
小物などが飾れる棚や天井には間接照明があしらわれていて、お部屋を上品な雰囲気に包んでくれています。生活感が出がちな荷物をすっきりと収納できる物入れもあって便利です。
埋込式電気暖炉が新設されています。洗練されたデザインと機能でどんなお部屋にもマッチ。炎・ダウンライト・10色に光る燃えさしの灯りを個別に調節することもできますよ。
南西向きで日当たり良好なバルコニーです。25階部分のため、建物に遮られることがなく、空へと抜けるような景観が広がります。天気が良いと富士山も望むことができますよ。
ペットが飼育可(細則有)となっているので、現在一緒に住まわれている方や将来飼いたいと思っている方には特におすすめです。


キッチンは存在感のあるアイランドキッチンです。リビングダイニングを見渡しながら料理することができるのでコミュニケーションもとりやすくなっています。さらに、両側から出入りすることができる動線になっているので使い勝手も良好です。
3口コンロ、グリル、ディスポーザー、食洗機付きと設備面も充実しています。シンクも広々としているので野菜などが洗いやすそうですよ。
背面にはカップボードが付いています。コンセントがあるので電子レンジや炊飯器などの家電を置くこともできますし、吊戸棚や引出しなどがあるので調味料や保存食品などの収納にも使うことができます。ゴミ箱を収納するスペースもあるので使わない時は隠しておくことができますよ。


約6.7帖の洋室1は、間接照明やアクセントクロスでくつろぎの空間となっています。システム収納が設置されているので、洋服や小物などが収納しやすそうです。また、窓からは東側のバルコニーにアクセスができます。午前中から気持ちの良い陽が入って◎。
東側のバルコニーは、渋谷方面を見渡す抜け感のある眺望が堪能できます。チェアなどを置いて気分転換にも良さそうです。


ホテルライクな2ボウル洗面の化粧台です。忙しい朝でも並んで支度ができるので嬉しいですね。大きなミラーボックスの中には化粧品などが収納できて使い勝手が良好です。また、背面側にはリネン庫が造られているので、ごちゃごちゃしがちな洗面まわりもきちんと整頓させることができます。


1620サイズでゆったりと入浴できるバスルームです。お風呂にゆっくり浸かるのが好きという方に嬉しい追い焚き機能を搭載。家族の入浴時間がずれてしまっても安心です。また、浴室乾燥機には暖房・乾燥・換気・涼風の機能がついており、一年中快適に過ごすことができます。浴槽側にテレビが付いているので、毎日のバスタイムがより充実した時間になりそうです。
浴槽にはヘッドレストが付いていて、優しく首元を支えてくれます。さらに、ヘッドレストの下と腰の位置からお湯が流れる「楽湯」機能も搭載されていて、全身をしっかり温めることができます。気分や好みに合わせて流量を変えることができ、至福のリラックスタイムになりそうですね。


ウォシュレット一体型のトイレです。タンクレスタイプなのですっきりとした印象に。また、別途で手洗い器と鏡が造られているので、その場でサッと身だしなみを整えることができます。上部には吊戸棚が設置されていて、収納スペースもありますよ。カウンタースペースにはアロマなどを置いても◎。


約5.1帖の洋室2は、窓もクローゼットもあって過ごしやすいお部屋。書斎や趣味部屋、子ども部屋など色々な使い方ができそうですよ。窓からはバルコニー越しに都会的な眺望が楽しめます。


玄関入って正面にはシューズボックスが備え付けられています。高さがありますが、フロートタイプのため空間に圧迫感を与えません。また、壁面には鏡が設置されているので、出掛ける際に全身のコーディネートをチェックすることができますよ。
玄関にはシューズボックスの他に物入れも設置。さらに、廊下にはマルチウォークインクローゼットが造られており、シーズンオフの荷物やアウトドアグッズなどを収納することができますよ。また、洗濯機置場には扉が付いているので、生活感を隠すことができて◎。


2009年(平成21年)4月竣工、総戸数219戸、鉄筋コンクリート造、地下2階付地上27階建てのタワーマンションです。24時間有人管理、ダブルオートロック、防犯カメラでセキュリティ面は安心。共用廊下は内廊下設計になっているので、プライバシー面にも配慮されています。エントランスにはコンシェルジュサービスがあるので、日々の暮らしがより豊かになりそうですよ。また、各階にクリーンステーションがあるのでわざわざゴミ捨てのために1階へ降りずに済みます。さらに、宅配ボックスも完備されているので、忙しい方でも時間を気にせずに荷物を受け取ることができますよ。駐車場や駐輪場、バイク置場もありますので、ご利用を希望される方は空き状況をご確認ください。また、ペットの飼育可能となっています(細則・規約による制限あり)。
東急田園都市線「池尻大橋」駅より徒歩2分ほどの駅近な立地です。「渋谷」駅と「三軒茶屋」駅の間にあり、利便性が高く人気のエリア。東急田園都市線は東京メトロ半蔵門線への直通運転を行っているので、「表参道」や「大手町」駅へも乗り換えなしでアクセスできます。さらに、東急東横線と東京メトロ日比谷線が乗り入れる「中目黒」駅も徒歩圏内。ショッピングや外食を気軽に楽しむことができます。マンション周辺にはコンビニやスーパー、ドラッグストアが揃っているので日用品の買い物に困ることはなさそうです。公園なども近くにあるので自然も感じることができる住環境になっています。
・ローソン 池尻大橋店(約200m)
・ファミリーマート 東山三丁目店(約220m)
・セブンーイレブン 目黒東山3丁目店(約280m)
・ライフ 目黒大橋店(約350m)
・スーパーみらべる 目黒大橋店(約400m)
・成城石井 池尻大橋店(約500m)
・まいばすけっと 池尻大橋駅西店(約500m)
・ココカラファイン 池尻大橋店(約170m)
・板津医院(約210m)
・おおはしさくらクリニック(約450m)
・池尻大橋駅内科・循環器内科クリニック(約650m)
・東邦大学医療センター大橋病院(約700m)
・自衛隊中央病院(約1.0㎞)
・セントラル病院 本院(約1.2㎞)
・国家公務員共済組合連合会 三宿病院(約1.3㎞)
・目黒警察署 大橋交番(約650m)
・目黒大橋郵便局(約50m)
・オーパス広場(約510m)
・東山貝塚公園(約240m)
・東山公園(約500m)
・菅刈公園(約750m)
・区立大橋図書館(約300m)
・ひがしやま幼稚園(約450m)
・平安幼稚園(約1.3㎞)
・区立菅刈小学校(約700m)
・区立第一中学校(約900m)
・都立駒場高等学校(約1.2㎞)
・東京大学 駒場キャンパス(約1.2㎞)
おすすめ記事【池尻大橋エリアの資産性の高いマンションや住みやすさ・人気の理由を解説!】はこちら。
撮影日:2025年11月17日
※家具・調度品は販売価格に含まれておりません。
※図面と現況が異なる場合は現況を優先とします。
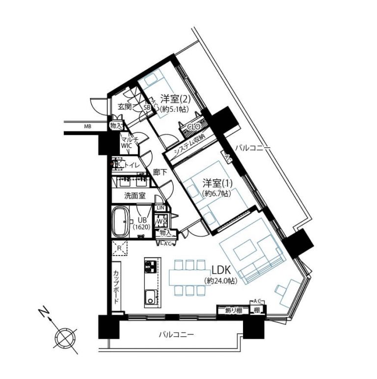
間取り図
設備・特徴
ローンシュミレーター
物件価格
27,000万円
頭金
金利(年)
返済年数
月々の支払金額
円
(支払総額 円)
このシミュレーションは、諸費用を含まない目安の数値となり、金額を保証するものではありません。
実際のお借り入れの可否や金利・返済額の諸条件については、金融機関にご確認ください
アクセスマップ
ディアナガーデン西麻布 1フロア1住戸のペントハウス!東京タワーを望むルーフバルコニー付きのメゾネット住戸
Brillia一番町 2019年竣工!105㎡超えの家族と住みたい角部屋3LDK
平河町森タワーレジデンス 駅から徒歩1分、知性が薫る街「平河町」アドレスに住まう
お客様の声
2025.06.13
mitaina user voice ~スムーズな住み替えに成功。高価格帯マンションの売り方・買い方、節税や投資物件のアドバイスまでトータルで任せられる存在~
中古マンション・不動産
2025.05.09
祐天寺・学芸大学・都立大学エリアのマンション売却相場と事例、高く売るために知っておくべき情報をご紹介
中古マンション・不動産
2025.05.07
高輪ゲートウェイ・泉岳寺エリアのマンション売却相場と事例、高く売るために知っておくべき情報をご紹介
中古マンション・不動産
2025.01.31
芝浦エリアのマンション売却相場と事例、高く売るために知っておくべき情報をご紹介