白金高輪 光と風が届く両面バルコニー
みどころ
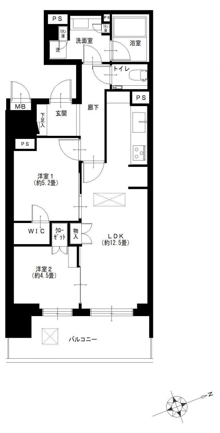
2017年に竣工した、総戸数61戸の13階建マンション。落ち着いた外観と豊かな植栽が迎えるエントランスは吹き抜けで開放感があり、ラウンジも併設されています。オートロック・防犯カメラ完備でセキュリティ面は安心。ペットは2匹まで飼育可能です。ご紹介すお部屋は6階部分、専有面積56㎡の2LDK。南東向きの明るい空間で、リビングには床暖房を完備しています。キッチンにはディスポーザー・食洗機・浄水器を備え、廊下にはエコカラットを設置するなど、快適性と機能性が充実した住まい。「四谷三丁目」駅・「曙橋」駅より徒歩6分、「四ツ谷」駅より徒歩9分の立地で、交通・生活利便性ともに良好です。




キッチンと合わせて約12.5帖のリビングダイニング。南東向きの大きな窓から明るい光が降り注ぎます。バルコニー付きで奥行きがあり、風通しの良さも魅力的ですね。エアコンにはスタイリッシュなビルトインタイプを採用していて、空間に奥行きをもたらします。
床暖房が敷設されていて、寒い時期も足元からじんわりと温まることができます。埃を舞い上げにくく、空気が乾燥しにくいのも嬉しいポイント。直接火に触れたり、コードに絡まってしまうことがないので、ペットがいても安心して使用できそうです。
ピクチャーレールが付いているので、壁を傷つけずにポスターや絵画を飾ることができます。インテリアの楽しみが広がりそうですね。
洋室扉の隣には可動棚収納を完備しています。書類や生活小物の収納に重宝しそう。散らかりがちなリビングがすっきり片付きそうです。


調理に集中できる独立キッチン。生活感が出やすいキッチンまわりをさりげなく目隠しでき、調理中のにおいが生活スペースに広がりにくいです。キッチン本体の収納に加え、奥にはカップボードがあり、収納性の高さも魅力です。
同時調理が叶うグリル付3口ガスコンロを内蔵。さらに、ディスポーザーと食洗機も完備されています。料理後すぐに生ゴミを処理できるので、悪臭の原因を防ぎ、掃除の手間を軽減。食器洗いも捗り、後片付けの時短が叶います。


約5.2帖の洋室1。WIC(ウォークインクローゼット)を完備しています。衣類はもちろん、トランクケースや季節家電といった大きな荷物も収納可能◎。すっきり片付けて、居室空間を有効活用できます。


2部屋に跨るバルコニー。9.90㎡の広々としたスぺースです。撮影日はあいにくのお天気でしたが、南東向きのため晴れの日にはあたたかい太陽光が届きそう。遠く広がる空に木々の緑も見える、抜けのある見晴らしです。




約4.5帖の洋室2。南東向きの窓から明るい光が届きます。クローゼット&棚が備え付けで収納豊富◎。自由度の高い可動棚で、散らかりがちな荷物をすっきり収納できます。LDKとは引き込み戸で仕切られているので、ライフスタイルやシーンに合わせて使い分けると◎。扉を開放して拡張リビングにしたり、閉めてワークスペースやプライベート空間にしたり。フレキシブルに活用してください。


石目調カウンターが高級感を醸し出す洗面化粧台。大きな三面鏡&ミドルミラー付きです。洗面ボウルが片側に寄せられていて、カウンタースペースが広く確保されています。化粧品やドライヤーの仮置きができ、忙しい朝の身支度がスムーズに行えそうですね。ミラーボックスや壁面収納も付いていて、洗面まわりの小物をすっきり収納できます。


明るく清潔感のあるバスルーム。換気・暖房・乾燥・涼風機能付きで1年中快適なバスタイムを過ごすことができます。お風呂にゆっくり浸かるのが好きという方に嬉しい追い焚き機能も搭載されていますよ。


廊下に面していて独立性の高いレストルーム。スタイリッシュなタンクレストイレに交換済みです。手洗いカウンター付きなのですぐに手を洗うことができ、ゲストを洗面室まで案内する手間がかかりません。トイレットペーパーや掃除用品は吊戸棚に収納してください。


人感センサー搭載でいつも明るく出迎えてくれる玄関。荷物で両手が塞がっている時や夜遅く帰宅した時に、スイッチを探す手間がかからず助かります。入って右手には大容量のシューズボックスを完備。自由度の高い可動棚で、靴はもちろん、傘も収納できます。
廊下にはエコカラットを設置。幾何学的なレリーフ柄でスタイリッシュな印象です。調湿・脱臭機能も備わっていて、快適な空間を実現します。


2017年(平成29年)7月に竣工した地上13階建マンション。鉄筋コンクリート造、総戸数は61戸です。落ち着いた雰囲気の外観に、植栽の緑が彩りを添えています。吹き抜けがあるエントランスホールは開放感があり、その一角にはラウンジも設けられています。オートロック・防犯カメラ完備でセキュリティ面は安心。宅配ボックスも設置されているので、時間を気にせず荷物の受け取りができます。敷地内には駐車場・駐輪場・バイク置場があり、お出かけの幅が広がりそう。空き状況は変動するのでお問い合わせくださいね。ペットは2匹まで飼育可能で、ペットの足洗い場も完備されています。
東京メトロ丸ノ内線「四谷三丁目」駅・都営新宿線「曙橋」駅より徒歩6分。JR中央・総武線・東京メトロ丸ノ内線・南北線が乗り入れる「四ツ谷」駅も徒歩圏内で、交通利便性に優れた立地です。「新宿」駅へ5分、「東京」駅へ13分ほどで直通アクセスでき、通勤や休日のお出かけに便利です。徒歩5分圏内にスーパー・コンビニ・ドラックストアが揃っているので、日々の買い物に困ることもありません。
・ファミリーマート 新宿荒木町店(約80m)
・スギ薬局 四谷三丁目店(約200m)
・まいばすけっと 新宿三栄町店(約300m)
・ローソンストア100 四谷二丁目店(約350m)
・ビオセボン(Bio c’ Bon) 四谷三丁目店(約350m)
・ローソンストア100 四谷二丁目店(約350m)
・セブン-イレブン 新宿舟町店(約400m)
・ダイエー四谷荒木町店(約550m)
・マルエツ プチ 四谷二丁目店(約600m)
・三徳 住吉店(約800m)
・柳沢クリニック(約350m)
・須田医院(約400m)
・クリニカルリサーチ東京病院(約700m)
・慶應義塾大学病院(約1.3km)
・柳町病院(約1.4km)
・東京女子医科大学病院(約1.4km)
・四谷警察署 四谷三丁目交番(約500m)
・警視庁 四谷警察署(約600m)
・四谷通二郵便局(約70m)
・新宿区立四谷図書館(約1.1km)
・三栄公園(約130m)
・荒木公園(約200m)
・あらき児童遊園(約350m)
・外濠公園(約850m)
・新宿区立四谷子ども園(約400m)
・にじいろ保育園四ツ谷(約650m)
・ニチイキッズ曙橋保育園(約700m)
・四谷新生幼稚園(約900m)
・新宿区立四谷小学校(約400m)
・新宿区立四谷中学校(約850m)
・中央大学 市ケ谷キャンパス(約700m)
おすすめ記事【四ツ谷エリアの資産性の高いマンションや住みやすさ、人気の理由を解説】はこちら。
撮影日:2025年11月25日
※家具・調度品は販売価格に含まれておりません。
※図面と現況が異なる場合は現況を優先とします。
間取り図
設備・特徴
ローンシュミレーター
物件価格
14,990万円
頭金
金利(年)
返済年数
月々の支払金額
円
(支払総額 円)
このシミュレーションは、諸費用を含まない目安の数値となり、金額を保証するものではありません。
実際のお借り入れの可否や金利・返済額の諸条件については、金融機関にご確認ください
アクセスマップ
神楽坂 136㎡超え!家族とゆったり暮らせる3SLDK
パークコート千代田四番町 歴史薫る番町エリアに佇む140㎡超えの邸宅
ザ・パークハウスグラン三番町26 品格漂う格式高いエリアに住まう、快適な暮らしを叶える113㎡超えの3LDK
お客様の声
2025.06.13
mitaina user voice ~スムーズな住み替えに成功。高価格帯マンションの売り方・買い方、節税や投資物件のアドバイスまでトータルで任せられる存在~
中古マンション・不動産
2025.05.09
祐天寺・学芸大学・都立大学エリアのマンション売却相場と事例、高く売るために知っておくべき情報をご紹介
中古マンション・不動産
2025.05.07
高輪ゲートウェイ・泉岳寺エリアのマンション売却相場と事例、高く売るために知っておくべき情報をご紹介
中古マンション・不動産
2025.01.31
芝浦エリアのマンション売却相場と事例、高く売るために知っておくべき情報をご紹介