湯島 上野公園に隣接、豊かな自然を身近に感じられる住環境
みどころ
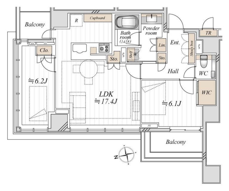
東京メトロ丸ノ内線「新宿御苑前」駅から徒歩4分。今回ご紹介する物件は約71.29㎡の2LDKです。33階部の高層階で、開放感あふれる眺望が魅力の住戸。新宿御苑の緑と新宿エリアのビル群が望め、緑の癒しと煌びやかな都会の夜景、2つの新宿が楽しる景色です。全居室見晴らしが良く、どこに居ても開放的な景色を背景に過ごせます。キッチンにはIHクッキングヒーター、大型食洗機、ディスポーザーが備わっています。




キッチンスペースを含め、約17.4帖のLDK。家族でゆったり過ごせる広さです。空間の印象を決める開放感あふれる眺望が魅力的。新宿御苑の緑と、新宿エリアのビル群が望めます。夜には煌びやかな夜景も楽しめそうですね。リビングの一角には収納スペースを完備。生活用品の整頓に便利です。
床暖房が設置されていて、冬場でも足元からじんわりと温まれます。床に直接座ったり、寝転んでもひんやり感なく暖かく過ごせます。




洋室(約6.1帖)に面した西向きのバルコニー。手すりが透明で景色を遮らず開放感たっぷりです。33階部の高層階につき眺望良好。新宿御苑の緑が望め身近に四季を感じることができ、さらに目線を奥へとずらすと新宿エリアのビル群が望めます。夜には夜景も楽しめそうですね。また、キッチン側(北側)にもコンパクトなバルコニーが設けられています。こちらも眺望良好です。




家族やゲストと会話が弾む対面型のシステムキッチン。手入れがしやすいIHクッキングヒーター、家事の時短に心強いAEG(ドイツ・エレクトロラックス社)製の大型食洗機、生ゴミの処理に便利なディスポーザー付きで設備も充実しています。カップボードも設置されていて、収納スペースもしっかりと確保されています。


約6.2帖の洋室。リビングから直接出入りできる動線で、家族とのコミュニケーションが取りやすくなっています。開放感あふれる景色を眺めながら過ごせるお部屋。西側には新宿御苑の緑と、新宿エリアのビル群が望め、北東方面には東京スカイツリーも望めます。クローゼットとエアコンも備わっています。


洗面化粧台は洗面まわりの小物がすっきり整頓できるミラーボックス付でいつでも整った状態を保てそうです。別途リネン庫も設けられていて、収納スペースが充実しています。


1418サイズのバスルーム。タイル貼りでホテルライクな上質な雰囲気があります。追い炊き機能の他、ミストサウナ・換気・乾燥・暖房・涼風機能付きで、一年中快適にバスタイムが楽しめます。
廊下に面したレストルーム。空間がすっきり見えるタンクレストイレです。手洗いカウンター、収納スペースも完備。ウォシュレットリモコンはスティック型でスタイリッシュな雰囲気です。


約6.1帖の洋室。廊下に面した独立性の高い空間で、自分時間をゆっくりと過ごせます。こちらのお部屋も眺望良好。バルコニー手すりが透明で、景色を遮らず室内からでも開放的な景色が望めます。WIC(ウォークインクローゼット)は2方向にハンガーパイプが設置されていて、洋服がたっぷりと掛けることができます。


天井まで高さのあるシューズボックス。4枚扉で靴がたっぷりと収納できます。傘などを整頓できるスペースもあります。また、玄関には姿見も付いていて、お出かけ前の身だしなみチェックも〇。廊下にも物入が設けられています。
玄関照明は自動センサーへの切り替えが可能。帰宅時に明るい空間で出迎えてくれます。廊下にも収納スペースが備わっています。


「クラッシィタワー新宿御苑」は2024年(令和6年)10月に竣工しました。住友商事(株)旧分譲・鹿島建設(株)施工の免震タワーレジデンスです。鉄筋コンクリート造地下1階付35階建、総戸数は280戸。スリムなシルエットで都会的な外観が印象的です。敷地の周囲は四面道路になっている上に公開空地もあり、開放感のある佇まいです。採光・通風性の高さも魅力的ですね。オートロック・防犯カメラ完備でセキュリティ面は安心。共用部にはホテルライクな雰囲気が漂い、豊かな暮らしをサポートしてくれるコンシェルジュサービスも備わっています。さらに、プライベートサロンやパークビューラウンジなど共用施設も充実しています。
東京メトロ丸ノ内線「新宿御苑前」駅より徒歩4分。緑豊かな「新宿御苑」至近の山手線内側立地です。都心でありながら自然を身近に感じることができ、穏やかな毎日を過ごせそうですね。東京メトロ副都心線・都営新宿線「新宿三丁目」駅や「四谷三丁目」駅も徒歩圏内で複数路線利用可能。コンビニ・スーパーが徒歩2分圏内に揃っていて、日々の買い物に便利です。新宿エリアが生活圏になり、ショッピングやグルメを気軽に楽しむことができますよ。
・セブンーイレブン 新宿御苑前本通り店(約95m)
・ローソン 新宿御苑中央店(約400m)
・ミニストップ 新宿大京町店(約400m)
・ファミリーマート 四谷四丁目店(約500m)
・まいばすけっと 新宿外苑西通り店(約120m)
・ヨークフーズwith ザ・ガーデン自由が丘 新宿富久店(約650m)
・クック―Y 新宿店(約650m)
・ダイエー 四谷荒木町店(約900m)
・三徳 住吉店(約1.1㎞)
・ヒグチ 新宿御苑前店(約350m)
・新宿マルイ 本館(約1.0㎞)
・伊勢丹百貨(約1.1㎞)
・ルミネエスト新宿(約1.4㎞)
・クリニカルリサーチ東京病院(約400m)
・新宿トミヒサクロスクリニック(約750m)
・伊藤医院(約1.0㎞)
・慶應義塾大学病院(約1.1㎞)
・代々木病院(約1.4㎞)
・東京女子医科大学病院(約1.8㎞)
・JR東京総合病院(約1.8㎞)
・都立大久保病院(約1.8㎞)
・四谷警察署 新宿交番(約500m)
・新宿花園郵便局(約350m)
・区立花園公園(約130m)
・大木戸児童遊園(約270m)
・花園東公演(約350m)
・花園西公園(約500m)
・新宿御苑(約150m)
・区立四谷図書館(約140m)
・区立花園幼稚園(約300m)
・区立四谷第六幼稚園(約950m)
・鳩の森は綿幼稚園(約1.7㎞)
・区立花園小学校(約230m)
・区立四谷中学校(約1.6㎞)
・東京医科大学(約750m)
・慶應義塾大学 信濃町キャンパス(約900m)
撮影日:2026年2月9日
※家具・調度品は販売価格に含まれておりません。
※図面と現況が異なる場合は現況を優先とします。
間取り図
設備・特徴
ローンシュミレーター
物件価格
34,400万円
頭金
金利(年)
返済年数
月々の支払金額
円
(支払総額 円)
このシミュレーションは、諸費用を含まない目安の数値となり、金額を保証するものではありません。
実際のお借り入れの可否や金利・返済額の諸条件については、金融機関にご確認ください
アクセスマップ