ザ・パークハウスグラン三番町26 品格漂う格式高いエリアに住まう、快適な暮らしを叶える113㎡超えの3LDK
コスモ中野 自分好みに作れるワークスペースは「成約済み」です。
みどころ
1996年(平成8年)9月に竣工した「コスモ中野」。鉄骨鉄筋コンクリート造地上8階建、総戸数27戸のマンションです。暮らしの安心・安全をサポートしてくれるTVモニター付オートロック体制。大規模修繕工事実施済みで管理体制の良さがうかがえます。こちらのマンションは、JR中央・総武線・東京メトロ東西線「中野」駅より徒歩9分ほどの場所に立地しています。他にも東京メトロ丸ノ内線「東高円寺」駅、「新中野」駅より徒歩8分の距離で、複数路線利用可能です。都内主要駅へダイレクトアクセスできる利便性の高さが魅力です。「中野」駅前にはアーケード商店街「中野サンモール」があり、買い物や外食のレパートリーに困ることもなさそうです。
お部屋は南向きの明るい2LDK。ガラス扉で仕切られたDENはワークスペースにぴったりです。壁には有孔ボードが施工されているので、お気に入りを飾って自分好みの空間づくりを楽しめますよ。
【mitaina VR】mitainaでは、マンション売却を検討中のお客様向けに売却支援サービスを行っています。スタッフが実際に取材し、記事を作成してmitainaに掲載します。詳しくはこちらを参照ください。






南向きの明るいリビングダイニング。ナチュラルな風合いの木目柄が美しいフローリングは、すでに持っている家具とも相性が良さそうです。建具も木目柄で統一されていて、木のぬくもりが溢れる空間。ウッドパネルとそこから漏れる間接照明の明かりが、洗練された空間を演出してくれます。エアコン新規設置済みなのも嬉しいポイントです。


美しい木目で家具のようなキッチン。リビングダイニングを見渡せる対面タイプで、開放的に調理ができます。パートナーやゲストとの会話も弾みそうですね。グリル付3口ガスコンロ搭載で、効率良く調理ができます。浄水器一体型水栓や食洗機も付いていて、快適なキッチン時間をサポートしてくれますよ。


LDKに隣接するDENスペース。開放感のあるガラス扉で圧迫感を感じず、作業が捗りそうです。壁には有孔ボードが施工されていて、自分好みの空間づくりを楽しめますよ。リモートワークや勉強にぴったりのスペースですね。


LDKに接続している洋室。南向きバルコニーに面していて、陽当たり・通風良好です。ウォークインクローゼット(WIC)完備で収納力も◎。ハンガーパイプや棚が設置されているので、整理整頓しやすいです。すっきり片付けて空間を有効活用できそうですね。部屋・WICともに引き戸を採用していて、開閉時のデッドスペースがないのも嬉しいです。


廊下に面していて独立性の高い洋室。クローゼットと出窓付きのお部屋です。出窓にお花や小物を飾れば、空間がぱっと彩りそうですね。


木目柄の扉であたたかみを感じる洗面化粧台。三面鏡上部には照明が付いていて、顔や手元を明るく照らしてくれます。中は収納スペースになっていて、洗面まわりの小物を整理整頓できますよ。隣には可動棚があり、毎日使うタオルや化粧水の収納にぴったりです。
光沢のある壁パネルで高級感が漂うバスルーム。ワイドミラーが空間に奥行きをもたらし、広々とした印象になります。浴室乾燥機搭載で雨の日のお洗濯は安心。お風呂にゆっくり浸かるのが好きという方に嬉しい追い焚き機能も付いています。
TOTO製のウォシュレット一体型トイレ。タオルリングとペーパーホルダーはステンレスで統一され、シンプルでスタイリッシュな空間です。トイレットペーパーの収納に便利な吊戸棚も完備。生活感が出てしまう部分をさりげなく隠せて嬉しいですね。


玄関・廊下は大理石貼りで、ホテルライクな雰囲気です。入って右手にはシューズボックスがあり、散らかりがちな靴をすっきり収納可能。リビングドアから漏れる光が、その先の明るい時間を彷彿させます。


1996年(平成8年)9月に竣工した鉄骨鉄筋コンクリート造のマンション。地上8階建、総戸数は27戸です。街に馴染む落ち着いた外観が印象的。TVモニター付オートロック完備で、セキュリティ面は安心です。
JR中央・総武線・東京メトロ東西線「中野」駅より徒歩9分の場所に立地しています。他にも東京メトロ丸ノ内線「東高円寺」駅、「新中野」駅より徒歩8分の距離で、複数路線利用可能。都内主要駅へダイレクトアクセスでき、交通利便性に優れています。「中野」駅前にはアーケード商店街「中野サンモール」があり、買い物に便利。飲食店も多く、活気あふれるエリアです。
・ファミリーマート 中野中央五丁目店(約330m)
・コープみらい 中野中央店(約390m)
・セブンイレブン 杉並和田3丁目東店(約400m)
・オオゼキ 東高円寺店(約430m)
・Santoku 新中野店(約440m)
・まいばすけっと中野3丁目(約450m)
・スギ薬局 中野南口店(約470m)
・ピーコックストア 中野マルイ店(約690m)
・中野サンモール(約900m)
・サミット 鍋屋横丁店(約1.0km)
・城西診療所(約30m)
・中野総合病院 救急外来(約570m)
・東京医療生活協同組合新渡戸記念中野総合病院(約590m)
・中野クリニック(約700m)
・頭とからだのクリニック かねなか脳神経外科(約840m)
・救世軍ブース記念病院(約1.3km)
・東京警察病院(約1.4km)
・警視庁中野警察署 中央五丁目交番(約450m)
・東高円寺郵便局(約500m)
・区立中央西公園(約220m)
・子宝公園(約240m)
・区立橋場公園(約420m)
・区立中央公園(約520m)
・中野サンプラザ(約1.0km)
・中野ブロードウェイ(約1.1km)
・高円寺東保育園(約190m)
・桃園幼稚園(約460m)
・区立桃花小学校(約420m)
・区立中野中学校(約1.5km)
※家具・調度品は販売価格に含まれておりません。
※図面と現況が異なる場合は現況を優先とします。
※更新日:2022年2月17日
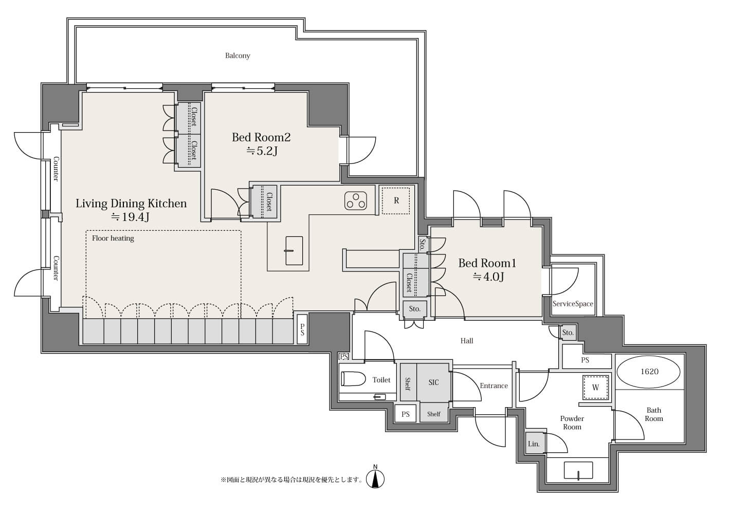
間取り図
設備・特徴
アクセスマップ
ザ・パークハウスグラン三番町26 品格漂う格式高いエリアに住まう、快適な暮らしを叶える113㎡超えの3LDK
パークタワー西新宿 ペットと暮らせる大規模タワーレジデンス、新築未入居の2LDK
高田馬場 2025年竣工の都心邸宅、南向きのフレキシブルな住まい
お客様の声
2025.06.13
mitaina user voice ~スムーズな住み替えに成功。高価格帯マンションの売り方・買い方、節税や投資物件のアドバイスまでトータルで任せられる存在~
中古マンション・不動産
2025.05.09
祐天寺・学芸大学・都立大学エリアのマンション売却相場と事例、高く売るために知っておくべき情報をご紹介
中古マンション・不動産
2025.05.07
高輪ゲートウェイ・泉岳寺エリアのマンション売却相場と事例、高く売るために知っておくべき情報をご紹介
中古マンション・不動産
2025.01.31
芝浦エリアのマンション売却相場と事例、高く売るために知っておくべき情報をご紹介