




WORLD TOWER RESIDENCE 浜松町駅直結!東京タワーを望む、洗練された1LDK
検索結果199件
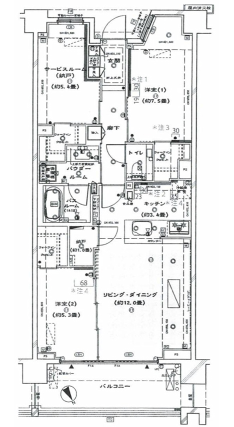
WORLD TOWER RESIDENCE 浜松町駅直結!東京タワーを望む、洗練された1LDK
グランツオーベル南平台 140㎡超の2LDK、ゆとりと安らぎが織りなす低層レジデンス
池尻大橋 バルコニーから富士山を望む、28階の南西向き1SLDK
フォレセーヌ渋谷富ヶ谷 富ヶ谷の丘陵地に佇む、静謐な低層レジデンス
神泉 心地よい緑を感じながら暮らす
パークコート浜離宮ザタワー 36階のプレミアムフロア、気分が高揚する開放的な眺望
WORLD TOWER RESIDENCE 東京タワービュー。ロケーションを堪能させる大きな窓
白金ザ・スカイWEST棟 上質で上品なこだわりの内装!都心の街並みを見渡せる2LDK
ドゥ・トゥールイースト ビル群と運河が望める開放的な眺望
目黒 春の楽しみが増える!家族と住みたい角部屋3LDK
信濃町 都心の利便性と緑の潤いを両立した住まい
池尻大橋 窓が多い角住戸、見晴らしのいい3LDK
コートレジデントタワー 小石川後楽園隣接、90㎡超の開放感溢れる南西角住戸
銀座 新築未入居、2025年竣工の新築マンション
ザ・パークハウス晴海タワーズクロノレジデンス 49階建の48階部、開放的な景色を取り込む2LDK
ブランズ千代田富士見 隈研吾デザイン監修マンション、約210㎡の開放感あふれる3LDK
グランスイート虎ノ門 最上階角部屋、都心を一望する110㎡超えの2LDK
ザ・パークハウス渋谷南平台 品格と静寂を纏う、渋谷の低層邸宅
パークコート渋谷大山町ザ・プラネ 低層レジデンスの最上階住戸
神泉 渋谷エリアが生活圏内、収納充実の1SLDK