



ザ・パークハウス元麻布 100㎡超えの1LDKで優雅な暮らしを
ホーマットキャピタル 全てのお部屋から八芳園の緑を望むは「成約済み」です。
みどころ
ホーマットキャピタルは、1980年(昭和55年)6月竣工、総戸数70戸、鉄骨鉄筋コンクリート造、地下2階付8階建てのヴィンテージマンションです。オートロック完備のためセキュリティ面は充実。細則はありますが、ペットの飼育も可能となっています。また、地下には平置き駐車場があるので、雨に濡れず車へ乗り込むことができますよ。荷物が多い時やお子さまがいらっしゃる方には嬉しいですね。さらに、本マンションは東京メトロ南北線・都営三田線「白金台」駅から徒歩4分の目黒通り沿いに佇んでいます。周辺には美しい日本庭園で知られている「八芳園」や「自然教育園」があり、都心でありながら豊かな緑を享受できる住環境も魅力的です。
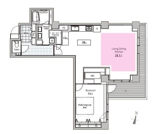
お部屋はファミリーにおすすめな3LDK。専有面積120㎡超えでゆったりと過ごすことができそうです。全居室から八芳園の緑を望むことができる癒しの空間で、四季を感じやすくなっています。さらに、3つのWICやSIC、パントリーが造られていて収納スペースもしっかりと確保されています。
自家用車をお持ちの方には嬉しい専用使用権付きの駐車場があります。平置きのためゲレンデなど大きな外車も駐車可能です。地下に位置しているので、雨の日にも濡れずに車で乗り込むことができて◎。
【mitaina VR】mitainaでは、マンション売却を検討中のお客様向けに売却支援サービスを行っています。スタッフが実際に取材し、記事を作成してmitainaに掲載します。詳しくはこちらを参照ください。
約25.4帖の広々としたリビングダイニングキッチンです。窓が大きくあり、八芳園の緑が見えて癒しの空間が広がっています。また、ペットが飼育可(細則有)となっているので、現在一緒に住まわれている方や将来飼いたいと思っている方には特におすすめです。
フローリングはナチュラルな風合いで美しい木目柄。床暖房付きなので足元からぽかぽか温まることができます。床暖房は、床から直接伝わる熱(伝道熱)と床から部屋全体に広がる熱(ふく射熱)の組み合わせで暖めます。埃が舞いにくく、空気が乾燥しにくいのもポイントです。
壁面には、アクセントクロスや間接照明があしらわれていて上質な雰囲気に演出してくれています。さらに、ピクチャーレールも設置されているので、絵画やグリーンなどが飾りやすくなっています。エアコンの埋め込み式のためすっきりとした印象に。
キッチンは、動線が最小限に済んでお料理がしやすいⅡ型です。作業スペースが広めに取れるのも◎。さらに、対面式にもなっているので、家族や来客とのコミュニケーションも取りやすくて嬉しいですね。
3口IHコンロ、グリル、食洗機付きと設備面も充実しています。シンクも広々としているので野菜などが洗いやすそうですよ。
キッチンの背面側には、約2.9帖のパントリーが造られています。調味料や保存食品などを収納することができるので便利。
約7.5帖でゆったりと過ごすことができる主寝室です。間接照明やクロスが優し気な雰囲気にしてくれています。また、ウォークインクローゼットがあり、コの字型にパイプハンガーが設置されているので、たくさんの洋服を収納することができますよ。
ホテルライクな2ボウル洗面の化粧台です。忙しい朝でも並んで支度ができるので使い勝手良好。また、大きなミラーボックスは、中に化粧品などの小物が収納できるようになっていて、背面側には棚があるので収納スペースがしっかりと確保されています。
ダークトーンの天井や浴槽でスタイリッシュな浴室。お風呂にゆっくり浸かるのが好きという方に嬉しい追い焚き機能を搭載。家族の入浴時間がずれてしまっても安心です。また、浴室乾燥機には暖房・乾燥・換気・涼風の機能がついており、一年中快適に過ごすことができます。
浴槽にはヘッドレストが付いていて、ゆったりと入浴できます。さらに、ヘッドレストの下と腰の位置からお湯が流れる「楽湯」機能も搭載されていて、全身をしっかり温めることができます。気分や好みに合わせて流量を変えることができ、至福のリラックスタイムになりそうですね。
トイレは2つも造られています。どちらもタンクレスタイプで、別途で手洗い器が付いています。来客用とプライベート用で使い分けることもできるので便利ですね。
約5.7帖の寝室1にもウォークインクローゼットが付いています。奥行きがあるタイプなので、洋服だけでなく大きめの荷物も収納することができそうですよ。子ども部屋として使っても良いかもしれませんね。また、こちらのお部屋の窓からも緑が見えて、気分転換がしやすそうです。
約12㎡の広々で南東向きのバルコニーです。目の前には、八芳園の緑が見えて四季を感じることができ、目隠し効果にもなってくれています。
バルコニーに面している約5.7帖の寝室2は、書斎や趣味部屋、リモートワークにも良さそうな空間。緑が見える眺望なのも◎。また、こちらのお部屋にもウォークインクローゼットが造られているので、収納スペースもしっかりと確保されています。
玄関入って左側には、約3.5帖のシューズインクローゼットが造られています。可動棚が設置されているだけでなく、衣類の花粉やホコリなどを落としてくれるLG Stylerも設置されています。玄関で落とせると、お部屋に持ち込まずに済むので嬉しいですね。また、廊下と玄関と2ヶ所から出入りできるのも◎。
廊下にはランドリールームが造られています。洗濯機置場があり、棚なども置くことができそうなので洗濯を一気に片付けることができそうです。
1980年(昭和55年)6月竣工、総戸数70戸、鉄骨鉄筋コンクリート造、地下2階付8階建てのヴィンテージマンションです。外観やエントランスなどの共用部は重厚感のある雰囲気。オートロック、モニター付きインターホン完備のためセキュリティ面は安心です。また、細則はありますが、ペットの飼育も可能となっています。さらに、地下には平置きの駐車場があり、専用使用権が付いています。ゲレンデなど大きな外車も駐車できるので嬉しいですね。
東京メトロ南北線・都営三田線「白金台」駅から徒歩4分の目黒通り沿いに佇んでいます。徒歩5分圏内の場所に24時間営業のスーパー、コンビニ、ドラッグストア、100円ショップが揃っています。さらに、お洒落なカフェやショップが立ち並ぶ「プラチナ通り」へも10分ほど。日用品の買い物はもちろん、外食も気軽に楽しむことができます。また、周辺には美しい日本庭園で知られている「八芳園」や「自然教育園」があり、都心でありながら豊かな緑を享受できる住環境も魅力的です。
・セブンーイレブン 白金台駅前店(約400m)
・ファミリーマート 高輪一丁目店(約600m)
・マルエツプチ 白金台店(約400m)
・いなげや 白金台店(約650m)
・リンコス 高輪店(約850m)
・クイーンズ伊勢丹 白金高輪店(約850m)
・ココカラファイン 白金台店(約270m)
・東京白金台クリニック(約260m)
・白金台メディカルクリニック(約350m)
・東京大学医科学研究所附属病院(約400m)
・北里大学北里研究所病院(約1.0㎞)
・JCHO東京高輪病院(約1.3㎞)
・NTT東日本関東病院(約1.3㎞)
・都立広尾病院(約1.6㎞)
・高輪警察署 清正公前交番(約350m)
・港白金台郵便局(約280m)
・白金二丁目第二緑地(約210m)
・白金台どんぐり児童遊園(約750m)
・白金児童遊園(約900m)
・シェラトン都ホテル東京(約140m)
・八芳園(約300m)
・国立科学博物館自然教育園(約850m)
・みつばち保育園(約650m)
・白金台幼稚園(約650m)
・愛星保育園(約700m)
・区立白金小学校(約400m)
・区立高松中学校(約500m)
・明治学院大学 白金キャンパス(約500m)
おすすめ記事【港区の由緒ある高級住宅街「白金高輪」住みやすさや人気な理由とは?】はこちら。
撮影日:2023年9月25日
※家具・調度品は販売価格に含まれておりません。
※図面と現況が異なる場合は現況を優先とします。
※更新日:2024年2月22日
間取り図
設備・特徴
アクセスマップ
ザ・パークハウス元麻布 100㎡超えの1LDKで優雅な暮らしを
パークコート浜離宮ザタワー 36階のプレミアムフロア、気分が高揚する開放的な眺望
白金タワー 駅直結!富士山も望めるラグジュアリーな2LDK
お客様の声
2025.06.13
mitaina user voice ~スムーズな住み替えに成功。高価格帯マンションの売り方・買い方、節税や投資物件のアドバイスまでトータルで任せられる存在~
中古マンション・不動産
2025.05.09
祐天寺・学芸大学・都立大学エリアのマンション売却相場と事例、高く売るために知っておくべき情報をご紹介
中古マンション・不動産
2025.05.07
高輪ゲートウェイ・泉岳寺エリアのマンション売却相場と事例、高く売るために知っておくべき情報をご紹介
中古マンション・不動産
2025.01.31
芝浦エリアのマンション売却相場と事例、高く売るために知っておくべき情報をご紹介