 
																
																	 
															 
								 
													牛込柳町 エコカラットで快適&上質空間、南向きの3LDK角部屋
ルネ神楽坂 南東角部屋、全部屋窓付きの2SLDKは「成約済み」です。
みどころ
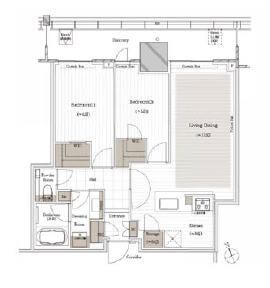
都営大江戸線「牛込神楽坂」駅から徒歩1分の駅近物件。今回ご紹介するお部屋は73㎡の2SLDK。南東角部屋につき陽当たり良好。全居室に窓付きで採光が確保された物件です。ホテルライクな2ボウルタイプの洗面化粧台付き、SIC(シューズインクローゼット)完備など魅力的なポイントが多数あります◎




キッチンスペース含め、約14.3帖のLDK。南東向きの二面採光で陽当たり・通風良好です。リビングと隣接している洋室1はガラス戸になっているので、実際の帖数よりも開放感の得られる空間となっています。扉を海容すれば、一体空間になりより広々とした感覚で過ごせます。また、収納スペースも確保されています。
木目が美しいナチュラルな風合いのフローリングは様々なインテリアのテイストと相性◎。床暖房も設置されており、冬場でも足元からじんわりと温まれます。床に直接座って遊ぶことの多い、小さなお子さんがいるご家庭にも嬉しい設備ですね。


空間を引き締めるダークカラーでスタイリッシュなシステムキッチン。リビングダイニングを見渡せる開放的なオープンキッチンで、家族やゲストとコミュニケーションが取りやすくなっています。3口ガスコンロ、食洗機付きで設備も充実。キッチン奥には小窓も付いているの換気もよりスムーズに行えます。


洋室1に面した南向きのバルコニー。雨や風の影響を受けにくいインナーバルコニーで洗濯物も安心して干せます。また、サービスルーム側にもバルコニーが付いています。こちらは朝の光が心地よい東向き。角部屋につき2面バルコニー付きの住戸となっています。


リビングダイニングと隣接している約5.1帖の洋室1。ガラス扉になっているので開放感のあるお部屋です。床にドアレールがないので、扉を開放した状態でも見た目もすっきりとした印象。レールにホコリがたまる心配もないので衛生的にも◎です。クローゼットも完備されています。


約4.4帖の洋室2。廊下に面した独立性の高いお部屋です。方角は朝の光が心地よい東向き。窓、クローゼット付きで過ごしやすいお部屋です。


約7.0帖のサービスルーム。リビングダイニングから離れたお部屋なので、生活音が響きにくく静かに過ごせます。窓はバルコニーへ出入り可能。クローゼットも備わっています。


ホテルライクな2ボウル仕様の洗面化粧台。家族で使用時間が重なってもゆっくりと使うことができます。洗面まわりの小物がすっきり整頓できるミラーボックス付きで収納力も◎。洗面台の右隣にはリネン庫も備わっています。


ウッド調であたたかみのあるバスルーム。追い炊き機能の他、乾燥・換気・暖房・涼風の4つの機能が備わっており、一年中快適にバスタイムをお楽しみ頂けます。ランドリーパイプも付いているので雨の日や冬場の洗濯にも困りません。
廊下に面しているレストルーム。空間をすっきりと見せてくれるタンクレストイレを採用。また、来客時に便利な独立型の手洗い器も付いています。ウォシュレットリモコンもスティック型でスタイリッシュです。


玄関入って右側にはSIC(シューズインクローゼット)を完備。便利な可動棚付きで靴以外にもスーツケースなども収納できそうです。また、廊下にもコンパクトな収納スペースが設けられています。


2007年(平成19年)7月竣工、総戸数130戸、鉄筋コンクリート造のマンションです。オートロック、防犯カメラ、モニター付きインターホンなのでセキュリティ面は安心。さらに宅配ボックスも完備されているので、荷物の受け取りにも便利です。ペットも飼育可能(細則有)なので大切なペットと一緒に生活することができます。また、本マンションは、最寄駅である都営大江戸線「牛込神楽坂」駅から徒歩1分という駅近なところに位置しています。駅近というだけで時間的にも気持ち的にも余裕が生まれますね。他にも「飯田橋」駅、「神楽坂」駅からも徒歩圏内なので行先に合わせて使い分けることができる便利な立地です。マンション周辺には、コンビニやスーパー、ドラッグストアなどが揃っているので日用品の買い物に困ることはなさそうです。さらに公園も点在しているのでお子さまやペットがいらっしゃる方は散歩や運動がしやすいので嬉しいのではないでしょうか。
・セブン-イレブン 新宿岩戸町店(約150m)
・ファミリーマート 新宿矢来町店(約350m)
・キッチンコート 神楽坂店(約50m)
・まいばすけっと 牛込神楽坂駅西店(約210m)
・三徳 牛込神楽坂店(約280m)
・よしやSainE 神楽坂店(約450m)
・神楽坂 KIMURAYA(約450m)
・クリエイトS・D 新宿牛込北町店(約300m)
・ウエルシア 新宿牛込店(約300m)
・ココカラファイン 神楽坂上店(約350m)
・くすりの福太郎 神楽坂店(約400m)
・神楽坂医院(約600m)
・JCHO東京新宿メディカルセンター(約750m)
・クリニカルリサーチ東京病院(約1.3㎞)
・柳町病院(約1.4㎞)
・東京逓信病院(約1.4㎞)
・東京女子医科大学病院(約1.6㎞)
・国立国際医療研究センター(約1.8㎞)
・警視庁 牛込警察署(約350m)
・牛込郵便局(約350m)
・区立中町公園(約350m)
・区立あさひ児童遊園(約350m)
・区立中町図書館(約450m)
・区立山伏公園(約450m)
・神楽坂毘沙門天 善國寺(約500m)
・区立若宮公園(約700m)
・区立あいじつ子ども園(約350m)
・区立市谷幼稚園(約600m)
・区立津久戸幼稚園(約750m)
・区立愛日小学校(約280m)
・区立牛込第三中学校(約550m)
・東京理科大学(約700m)
おすすめ記事
【「飯田橋」はアクセス抜群|神楽坂や皇居もすぐそこ?住みやすさと人気の理由を解説】はこちら。
【神楽坂おすすめ散歩コース|デートにもランチにも使える名店もご紹介】はこちら。
撮影:2023年10月
※家具・調度品は販売価格に含まれておりません。
※図面と現況が異なる場合は現況を優先とします。
※更新日:2024年6月20日
間取り図
 
			 
		設備・特徴
アクセスマップ
 
																				
																					 
																			 
										 
																	Brillia一番町(ブリリア一番町) 100㎡超え3LDK!築浅高級レジデンスの17階角部屋
 
																				
																					 
																			 
										 
																	神楽坂 2024年築!東南角部屋に位置する新築未入居の1SLDK
 
																				
																					 
																			 
										 
																	飯田橋 5路線が利用可能!ペットと暮らせる2LDK
 
															お客様の声
2025.06.13
mitaina user voice ~スムーズな住み替えに成功。高価格帯マンションの売り方・買い方、節税や投資物件のアドバイスまでトータルで任せられる存在~
 
															中古マンション・不動産
2025.05.09
祐天寺・学芸大学・都立大学エリアのマンション売却相場と事例、高く売るために知っておくべき情報をご紹介
 
															中古マンション・不動産
2025.05.07
高輪ゲートウェイ・泉岳寺エリアのマンション売却相場と事例、高く売るために知っておくべき情報をご紹介
 
															中古マンション・不動産
2025.01.31
芝浦エリアのマンション売却相場と事例、高く売るために知っておくべき情報をご紹介
