NEW





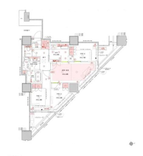
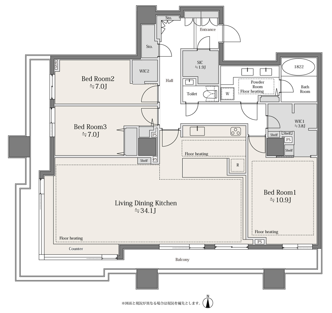
半蔵門 駅から徒歩1分、収納豊富ですっきり暮らせる2LDK
25,800万円(税込)
2LDK+納戸+WIC
/
102.84㎡
/
築50年以内
東京都千代田区一番町
/
徒歩5分以内